DESIGNING OUT THE NEED FOR AIR CONDITIONING 

 

danish architecture studio ingvartsen has completed ‘the field laboratory’ on an urban site in mtwara in southern tanzania. the two-story building is a base for researchers working on the public health, entomology, and architectural post-occupancy studies of star homes, a project which investigates the impact of improved housing on family health in tanzania.

 

the recently completed building challenges the idea that a field laboratory in a hot, tropical climate must be fully air-conditioned by aiming to have the majority of spaces passively cooled. this was achieved through techniques such as introducing large overhangs on the north and south façades and vertical fins on the east and west to increase shading and minimize overheating and glare during the day.

field laboratory passively cooled base for researchers in tanzania east africa 2
images courtesy of ingvartsen architects

 

 

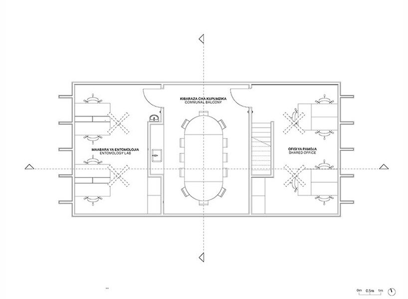
the double roof structure is designed to reduce solar radiation and heat gains to the upper floor. the orientation of the building and the interior layout are organized for optimum airflow. spaces that are required to be temperature-controlled, such as lab storage, are well insulated to lower in-use energy demand. shared offices include openable screened sliding windows which enable them to be passively cooled for most of the year.

 

as some of the passive design strategies used in the project were interdependent, such as the shading fins and the movement of air through the building, different design options were simulated using computational fluid dynamics (CFD) to better understand which strategies would be most effective for overall cooling. these simulations enabled alternative layouts to be analyzed to balance different factors and ensure optimal performance of the building.

field laboratory passively cooled base for researchers in tanzania east africa 3
the interior layout is organized for optimum airflow

 

 

the lab was designed to have lower embodied energy compared to a standard concrete block laboratory building per square meter, which was achieved by enclosing only the necessary spaces and making use of a light gauge steel (LGS) frame structure and a hollow wall build-up.

 

the program is centered around a covered terrace on the upper floor, which provides a comfortable space for colleagues to relax, share ideas and enjoy views out into the landscape. the project includes bespoke furniture, kitchen and storage. internal spaces are designed to be flexible and adapt as building use requirements evolve.

 

the field laboratory was designed by architects jakob knudsen, hannah wood and otis sloan brittain with consultancy from salum mshamu and lorenz von seidlein and was constructed by eco homes tanzania.

field laboratory passively cooled base for researchers in tanzania east africa 9
the shared offices include openable screened sliding windows

field laboratory passively cooled base for researchers in tanzania east africa 10
the field laboratory has a covered terrace on the second floor

field laboratory passively cooled base for researchers in tanzania east africa 11
the building is a base for star homes researchers

field laboratory passively cooled base for researchers in tanzania east africa 12
vertical fins increase shading

field laboratory passively cooled base for researchers in tanzania east africa 1
large overhangs minimize overheating and glare

field laboratory passively cooled base for researchers in tanzania east africa 7
different design options were simulated using computational fluid dynamics

 

 

1/4
 
 
 
 

project info:

 

name: field laboratory

location: mtwara, tanzania
architecture: ingvartsen architects

year: 2021

 

designboom has received this project from our DIY submissions feature, where we welcome our readers to submit their own work for publication. see more project submissions from our readers here.

 

edited by: lynne myers | designboom