‘keast park community pavilion’ by jackson clements burrows architects, victoria, australia image © john gollings all images courtesy of jackson clements burrows architects

 

 

 

arising out of the ashes of the dilapidated bowls club, australian practice jackson clements burrows architects‘ ‘keast park community pavilion’ is a new multi-purpose gateway to the city of frankston in victoria. the new program layers several athletic activities with social functions, meshing the carrum bowls club and sea scouts with an event space and cafe. wood planks mark cubes that wrap the steel structure of the ground level. these timber volumes house a lounge, small store and restrooms, as well as mark entryways to the bowls pitch as well as provide protection from the ocean wind.

 

the second storey extends the concrete floor plane with wooden terraces that offer seaward views to the west, as the deep overhang provides shading in the summer. the irregular folds and angles of the roof element mirrors the natural undulations of the adjacent dunes. a similarly jagged timber path connects visitors to the sea while bends upwards to create a protective wall, further reinforcing the idea of permeability through the building. water tanks are installed under the construct to store collected rainwater to be used in irrigation and in restrooms. wood, which is an abundant material used for structural purposes as well as cladding and decking, was locally sourced from sustainable plantation timber farms to reduce the impact on the natural environment.

jackson clements burrows architects: keast park community pavilion upstairs interior multi-use space image © john gollings

jackson clements burrows architects: keast park community pavilion (left) exterior corridor (right) exterior stairs images © john gollings

jackson clements burrows architects: keast park community pavilion voids between the wooden boxes permeate the structure to create a gateway image © john gollings

jackson clements burrows architects: keast park community pavilion view from the bowls pitch image © john gollings

jackson clements burrows architects: keast park community pavilion (left) view from the dunes (right) approach towards ramps image © john gollings

jackson clements burrows architects: keast park community pavilion wooden deck leading to the sea image © john gollings

jackson clements burrows architects: keast park community pavilion bird’s eye view image © john gollings

jackson clements burrows architects: keast park community pavilion site plan

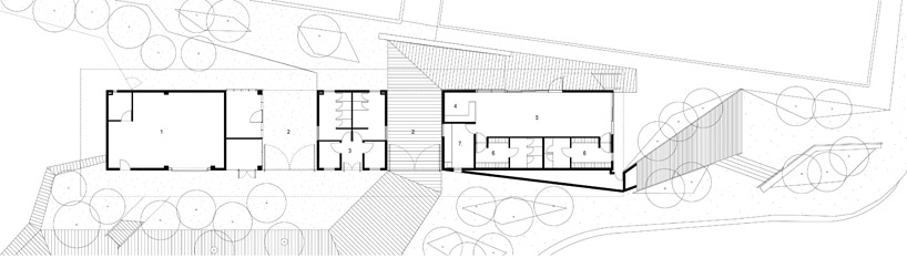
jackson clements burrows architects: keast park community pavilion floor plan / level 0

jackson clements burrows architects: keast park community pavilion floor plan / level 1

jackson clements burrows architects: keast park community pavilion section

jackson clements burrows architects: keast park community pavilion elevation

jackson clements burrows architects: keast park community pavilion elevation

jackson clements burrows architects: keast park community pavilion elevation

jackson clements burrows architects: keast park community pavilion section