KEEP UP WITH OUR DAILY AND WEEKLY NEWSLETTERS
the spiral structure is built from upcycled lantana camara, an invasive shrub introduced to india through colonial trade routes.
connections: +990
designboom discusses this creative boom with stefano boeri, MVRDV's winy maas, christian kerez, beat huesler of oppenheim architecture, and the team at bofill taller de arquitectura.
the proposal draws from a historic english architectural feature composed of alternating curves.
the zando central market redevelopment turns one of the congolese capital’s most vital spaces into an infrastructure for 20,000 vendors.
connections: +1830

patio image ©
deck image ©
(left) facade detail (right) terrace images ©
corridor image ©
bedroom view image ©
bedroom balcony image ©
terrace at dusk image ©
image ©
at night image ©
site plan
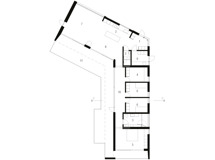
floor plan / level 0 1. entrance hall 2. kitchen 3. bathroom 4. study 5. master bedroom 6. bedroom 7. living room 8. dining area 9. laundry room 10. gallery 11. patio
section
elevation
elevation
elevation
elevation