JSa wins commission for design of museo juan soriano in cuernavaca
all images courtesy of JSa

 

 

 

based on their winning competition proposal, mexico city-based JSa has received the commission for the design of ‘museo juan soriano,’ in the town of cuernavaca. selected by the state government of morelos and the national council for culture and the arts, the facility will be home to a permanent collection of works by the highly regarded artist from which the facility is named. the scheme includes a large garden landscape, and maintains many of the prominent trees existing on the site. the spatial arrangement provides for flexibility in the presentation of exhibition materials, as well as a non-chronological reading of the diverse oeuvre.

JSa museo juan soriano cuernavaca designboom

the concrete building is composed with many diverse openings to the outside

 

 

 

the design seeks to provide a range of spatial conditions, in order to maximize the exhibition possibilities and also allow for a variety of visitor experiences. the building is characterized as a composition of concrete volumes, with an irregular arrangement of openings to the outside. on the main gallery level, this produces a condition of views that alternate to face either toward the city or the garden. the upper floor contains tall and sky lit rooms, which contribute a different environment than the spaces below.

JSa museo juan soriano cuernavaca designboom

the upper level contains high and sky lit gallery spaces

 

 

 

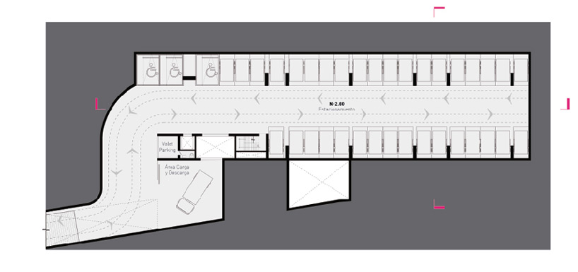
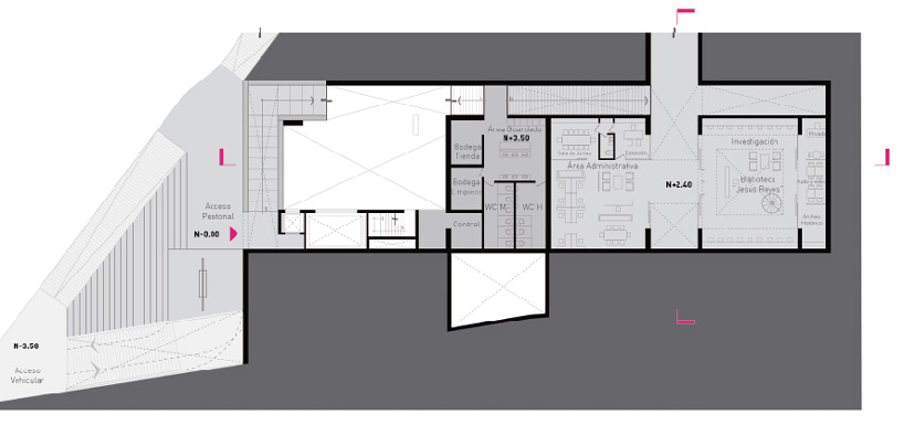
the garden provides a place for visitors to relax, and houses some of the larger sculptures which are fit for outdoor conditions. on the third level on the west side of the building, a restaurant and terrace offer a high view toward cuernavaca’s center. additionally, an auditorium accommodates conferences, musical concerts, film viewings, and theater performances, which serve to pay tribute to soriano’s work as a set designer.

JSa museo juan soriano cuernavaca designboom

JSa museo juan soriano cuernavaca designboom

the open layout on the main level allows for flexibility in exhibition arrangement

JSa museo juan soriano designboom

the gallery spaces contain expansive views toward the garden

JSa museo juan soriano cuernavaca designboom

a library is contained on a partially subterranean level

JSa museo juan soriano designboom

an auditorium accommodates music and theater performances

JSa museo juan soriano cuernavaca designboom

the forested garden houses the larger sculptures which are fit for outdoor conditions

JSa museo juan soriano designboom

site plan

 

 

1/8
g01
 
g02
 
g03
 
g05
 
g06
 
g07
 
g08
 
g09
 

 

 

 

project info:

 

location: cuernavaca, mórelos, méxico
project date: in process
site area: 7 mil 366 sqm
landscape area: 6 mil 350 sqm
built area: 5 mil 100 sqm
client: government of morelos, CONACULTA soriano foundation and marek keller, grupo financiero banorte and the trust of museum juan soriano
design team: JSa / javier sánchez, aisha ballesteros, jorge gonzález, gabriel martínez, santiago arroyo, juan jesús pérez, laura natividad, dania gutierrez, ana castillo, marie florence gardair, alfredo aguilar, alejandra medina
structural engineer: hector margain
landscape: maat handasa, pedro pablo velasco
museology: germán rostan
lighting: lighteam / gustavo avilés
renderings: luis frausto
models: edith razo, anayetzi ruiz, omar cortes, eric esioan, javier osorio