konieczny’s ark by KWK promes under construction in poland
all images courtesy of KWK promes

 

 

 

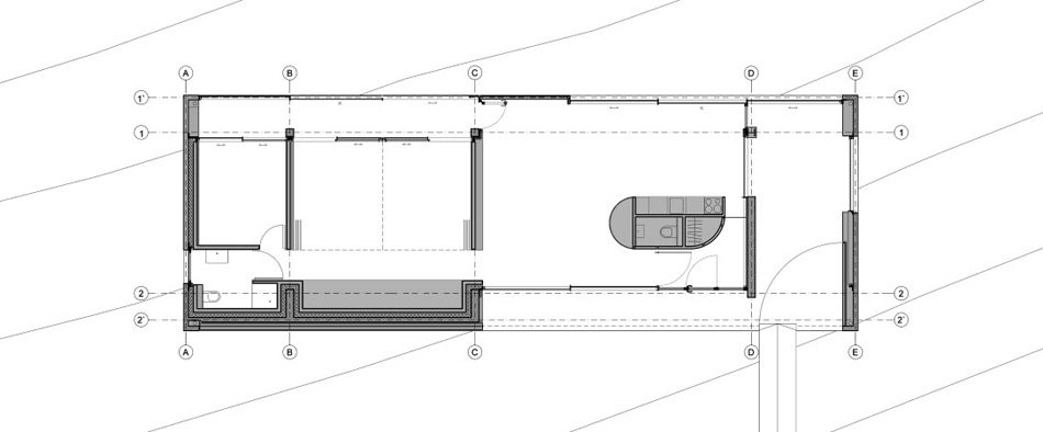
polish practice KWK promes has designed ‘konieczny’s ark’, a countryside retreat that takes the form of a traditional rural barn. positioned at the highest point of the site, the concrete home offers expansive views across the valley below.

 

the house is turned on a pivot, so that only one corner of the structure touches the ground, and the remaining volume is suspended above the landscape. the elevated building is treated like a bridge, limiting the movement of the land beneath the structure and allowing rainwater to flow naturally around it. the structural form of the design and the water flowing beneath it, lends the house its name as it rises like a boat above the landscape.

kwk promes konieczny's ark designboom
the design forms a countryside retreat that takes the form of a traditional rural barn

kwk promes konieczny's ark designboom
the dwelling offers views across the valley below

kwk promes konieczny's ark designboom
the concrete home is positioned at the highest point of the site

kwk promes konieczny's ark designboom
the structure can be fully enclosed in order to protect against security

kwk promes konieczny's ark designboom
‘konieczny’s ark’ in profile

kwk promes konieczny's ark designboom
the ark within its countryside setting

kwk promes konieczny's ark designboom
the approach to the single storey house

kwk promes konieczny's ark designboom construction
‘konieczny’s ark’ is currently under construction, with completion scheduled for summer 2014

 

1/12
kwk promes konieczny\'s ark designboom
 
kwk promes konieczny\'s ark designboom
 
kwk promes konieczny\'s ark designboom
 
kwk promes konieczny\'s ark designboom
 
kwk promes konieczny\'s ark designboom
 
kwk promes konieczny\'s ark designboom
 
kwk promes konieczny\'s ark designboom
 
kwk promes konieczny\'s ark designboom
 
kwk promes konieczny\'s ark designboom
 
kwk promes konieczny\'s ark designboom
 
kwk promes konieczny\'s ark designboom
 
kwk promes konieczny\'s ark designboom
 

 

project info:

 

title: konieczny’s ark
author: robert konieczny, lukasz marciniak
structural engineering: kornel szyndler
installations: tb-projekt
client: robert konieczny
site area: 1,694 sqm
floor area: 137.8 sqm

Save