les architectes FABG stacks bi-generational rosenberry residence in rural quebec
all images by steve montpetit

 

 

 

located on a large wooded lot near sutton, a town situated in southwestern quebec, this residence has been conceived as a shared family home for a financier now based in asia, and his parents who still live in canada. designed by les architectes FABG, the dwelling’s common areas, such as the kitchen, dining room and living room, occupy an open ground floor that also includes a wine cellar and a garage. the parents’ bedroom is found at the western end of the plan, next to a study that overlooks a swimming pool to the south.

les-architectes-FABG-rosenberry-residence-sutton-canada-designboom-02
the dwelling is located on a large wooded lot near sutton, quebec

 

 

 

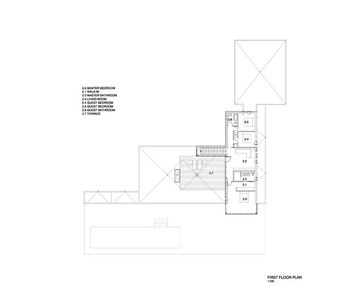
the upper level is reserved for the son, and houses a living room, guest rooms, a terrace and a master bedroom offering unobstructed views of mount sutton. the home’s two wings are positioned at right angles to minimize noise transmission between floors, an issue that becomes more pertinent when adjusting to the time difference between asia and quebec.

les-architectes-FABG-rosenberry-residence-sutton-canada-designboom-02
the residence has been conceived as a shared family home

 

 

 

externally, the house — clad with black lacquered aluminum panels and white cedar accents — sits on a podium oriented towards a swimming pool and lawn terrace. the hybrid dwelling has been constructed from wood, steel and concrete floors with radiant heating, while the glazing of the curtain wall and the windows include a low-e coating.

les-architectes-FABG-rosenberry-residence-sutton-canada-designboom-02
the dwelling’s common areas occupy an open ground floor

les-architectes-FABG-rosenberry-residence-sutton-canada-designboom-02
the kitchen and dining area offer views across the site

les-architectes-FABG-rosenberry-residence-sutton-canada-designboom-02
the lounge, also at ground level

les-architectes-FABG-rosenberry-residence-sutton-canada-designboom-02
a study overlooks a swimming pool to the south

les-architectes-FABG-rosenberry-residence-sutton-canada-designboom-02
the parents’ bedroom is found at the western end of the plan

les-architectes-FABG-rosenberry-residence-sutton-canada-designboom-02
the upper level is reserved for the son

les-architectes-FABG-rosenberry-residence-sutton-canada-designboom-02
the upstairs master bedroom offers views of mount sutton

les-architectes-FABG-rosenberry-residence-sutton-canada-designboom-02
the house sits on a podium oriented towards a swimming pool and lawn terrace

les-architectes-FABG-rosenberry-residence-sutton-canada-designboom-02
the property is clad with black lacquered aluminum panels

 

drawings

1/3
les architectes FABG rosenberry residence sutton canada designboom
 
les architectes FABG rosenberry residence sutton canada designboom
 
les architectes FABG rosenberry residence sutton canada designboom