lhoas & lhoas architects and O&O Baukunst‘s proposal for the ‘citroën cultural center’ is part of a complex political and cultural context, at the brussels level, but also at the belgian and european level. it will indeed be one of the last modern art museums to see the day in a capital of the continent. the exceptional site requires a delicate heritage approach while the ambitious program pushes to a certain form of radicalism. faced with a reality more complex than it seems of such a construction, drastic but reasoned choices were made in order to harmoniously dialogue the first built entities dating from 1933, the many additions of the various eras and a contemporary project.

citroën cultural center in brussels aims to symbolize 21st century museums
lhoas & lhoas’ ‘citroën cultural center’ is part of a complex political and cultural context in brussels
image © filippo bolognese

 

 

lhoas & lhoas architects and O&O Baukunst‘s project is organized around three entities: the showroom, the workshops and the monolith, a new building. the showroom is a showroom again, now cultural and social, but especially alive thanks to the preservation of a carefully selected part of the metal structures and concrete slabs that encumbered it. the workshops remain spatially almost unchanged and host the architectural center and a covered public area on the first floor. the monolith, blind and massive, seems delicately placed on the workshops, transparent and light. it houses four monumental exhibition slabs of 108 x 22 meters and becomes, canal side, the new symbol of a cultural center looking to the future.

citroën cultural center in brussels aims to symbolize 21st century museums
the monolith becomes the new symbol of a cultural center looking to the future
image © filippo bolognese

 

 

the attitude towards the new elements is similar to the heritage approach and is based on a critical reading of the building’s history. the new construction takes the codes of the existing and distracts them to enhance the latter. lhoas & lhoas and O&O Baukunst‘s ‘citroën cultural center’ must be a strong urban signal, affirmed but at the same time, the architects think and draw it as an absolute architectural abstraction. a desire to bring the museum into the twenty-first century through a subtle blend of social and cultural, past and present, the drawn and the improvised, the icon and its disappearance, the reality and the abstraction.

citroën cultural center in brussels aims to symbolize 21st century museums
citroën canal entrance
image © filippo bolognese

citroën cultural center in brussels aims to symbolize 21st century museums
citroën public space
image © filippo bolognese

citroën cultural center in brussels aims to symbolize 21st century museums
citroën sketch
image © lhoas & lhoas architects + O&O baukunst

citroën cultural center in brussels aims to symbolize 21st century museums
context axonometric view
image © lhoas & lhoas architects + O&O baukunst

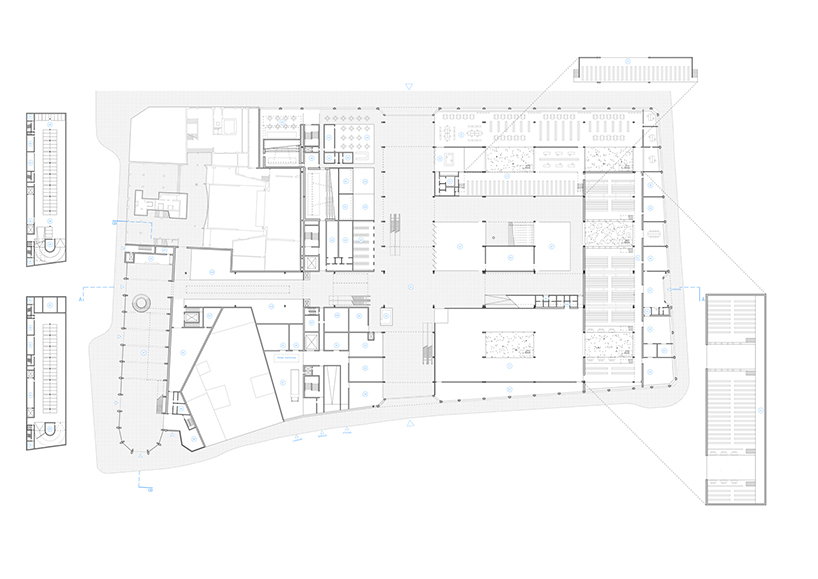
citroën cultural center in brussels aims to symbolize 21st century museums
ground floor
image © lhoas & lhoas architects + O&O baukunst

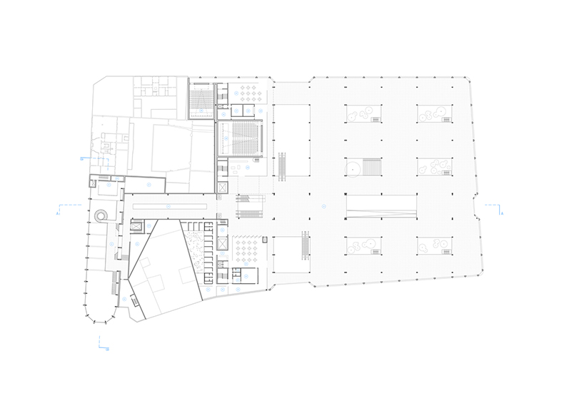
citroën cultural center in brussels aims to symbolize 21st century museums
first floor
image © lhoas & lhoas architects + O&O baukunst

citroën cultural center in brussels aims to symbolize 21st century museums
elevation
image © lhoas & lhoas architects + O&O baukunst

citroën cultural center in brussels aims to symbolize 21st century museums
elevation
image © lhoas & lhoas architects + O&O baukunst

citroën cultural center in brussels aims to symbolize 21st century museums
crossed-section
image © lhoas & lhoas architects + O&O baukunst

citroën cultural center in brussels aims to symbolize 21st century museums
public space axonometric view
image © lhoas & lhoas architects + O&O baukunst

 

 

designboom has received this project from our ‘DIY submissions‘ feature, where we welcome our readers to submit their own work for publication. see more project submissions from our readers here.

 

edited by: apostolos costarangos | designboom