mana studio’s a place to be concept questions the meaning of home
all images courtesy of mana studio

 

 

 

the word home is much deeper than its architectural association implies. yes, the physicality of a structure is important, but there is so much more. the home is a reflection of its inhabitants. it showcases their needs and desires, lifestyles, and personalities. it’s a place to be alone, and also together; to be loud and silent; happy and sad; and to work and play. the complexity of the word confuses its meaning, simply, it is ‘a place to be’.

mana studio's a place to be concept questions the meaning of home
top level 

 

 

 

mateusz szymon płoszaj-mazurek and natalia okolus of danish mana studio, created ‘a place to be’ as an entry into the international competition ‘design a beautiful house’ by barton willmore international. their design couples simple architectural forms with a broad, multi-faceted approach towards the meaning of home.

mana studio a place to be concept designboom
living room 

 

 

 

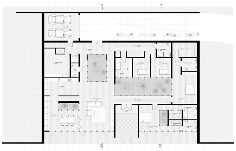
the structure is spread across two levels. at the base are the physical, functional, and metaphorical foundations — living space, kitchen, bedrooms, bathrooms etc. the proximity of each, in addition to the lakeside location and grey brick building material, creates a sense of security for residents.

manastudiodesignboom02
concept description 

 

 

 

above, are basic architectural extensions of the lower dwelling. these are meant to contrast with the ground level, and are composed of several detached structures that provide space for: a guest room, studio, cinema, play room, and arbor. wooden cladding and simple construction gives the auxiliary spaces a sense of lightness that solidifies the feeling of security present below.

mana studio a place to be concept designboom
sections 

manastudiodesignboom04
plot location and orientation 

mana studio's a place to be concept questions the meaning of home
façades

manastudiodesignboom05
plan: ground floor (1:100 scale) 

manastudiodesignboom06
plan: first floor (1:100 scale) 

 

 

designboom has received this project from our DIY submissions  feature, where we welcome our readers to submit their own work for publication. see more project submissions from our readers here.

 

edited by: nick brink | designboom