marc thorpe design will build sustainable housing from compressed earth in kampala, uganda

marc thorpe design will build sustainable housing from compressed earth in kampala, uganda

responsible housing in kampala

 

marc thorpe design partners with stage six and échale international to develop sustainable, ecologically responsible housing in uganda, east africa. according to the uganda bureau of statistics, uganda has a deficit of 2.1 million housing units, growing at a rate of 200,000 units a year. by 2030, the deficit is expected to reach three million units.

 

the goal of the kampala house project is to provide dwellings to middle to lower income families. each house will be built of bricks made from compressed earth. currently, there is extremely low supply of housing and it is usually of poor quality. stage six, échale international and marc thorpe design aim to relieve this pressure on the housing market and the people of uganda.

kampala house marc thorpe
visualizations by truetopia

 

 

the compressed earth ecoblock

 

the team behind the kampala house project is marc thorpe design (see more here), stage six (see more here), and échale international (see more here). the first houses of echale international will be constructed in uganda in the spring of 2022. 

 

each kampala house is built using echale international’s ecoblock, a compressed earth brick. the ecoblock is produced of 90% local soil and 10% a mixture of cement, lime, sand and water. it is a thermal and acoustic insulator, ecologically sustainable, more resistant than cement block and 30% less CO2 production. 

kampala house marc thorpe

 

 

uganda housing by marc thorpe design

 

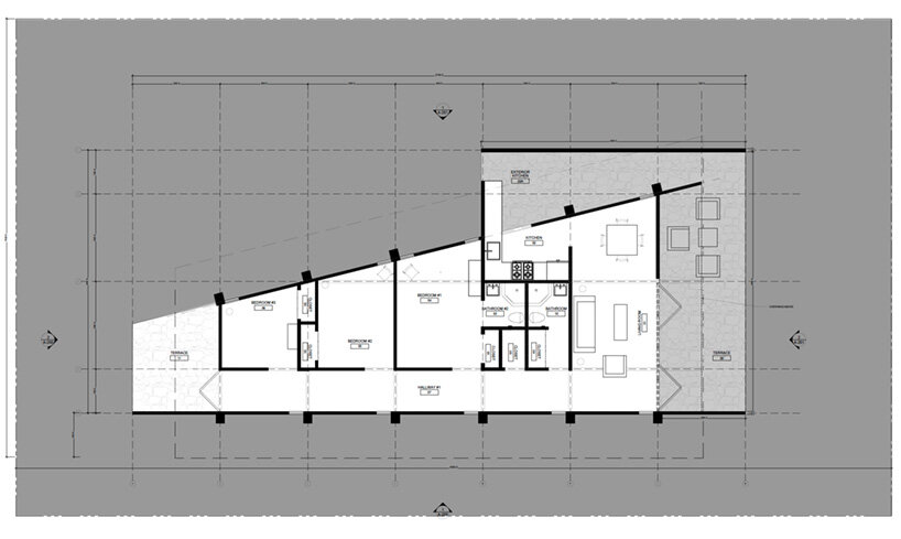
the marc thorpe-designed kampala project will comprise a series of houses of various size to be built with partnerships in africa. the typical house is laid out with three bedrooms, two baths, living, dining, and kitchen. connected to the kitchen is an exterior wood burning stove for outdoor cooking, commonly found in uganda. a large terrace wraps the front and side of the house allowing spaces to gather in shade for outdoor activity.

 

over the house is a large corrugated steel and wood roof designed to support an array of solar panels, harvest rainwater, and store in an adjacent water tower. the concept of a water tower for each home is to provide a community network of water supply be able to access and share in the event of a drought.

kampala house marc thorpe marc thorpe design will build sustainable housing from compressed earth in kampala, uganda marc thorpe design will build sustainable housing from compressed earth in kampala, uganda

marc-thorpe-design-kampala-house-uganda-designboom-06a

marc thorpe design will build sustainable housing from compressed earth in kampala, uganda

marc-thorpe-design-kampala-house-uganda-designboom-08a

 

 

1/7
floor plan
floor plan
section
section
elevation
elevation
an ecoblock, compressed earth brick
an ecoblock, compressed earth brick
making the ecoblocks
making the ecoblocks
making the ecoblocks
making the ecoblocks
making the ecoblocks
making the ecoblocks

project info:

 

project title: kampala house

design team: marc thorpe design, stage six, and échale international

location: kampala, uganda

visualizations: truetopia

KEEP UP WITH OUR DAILY AND WEEKLY NEWSLETTERS
suscribe on designboom
- see sample
- see sample
suscribe on designboom

architecture in uganda (16)

brick architecture (406)

earth architecture (79)

marc thorpe (16)

residential architecture and interiors (4689)

X
5