‘house in gotemba’ by masao yahagi architects, gotemba, shizuoka, japan image © koichi torimura all images courtesy of masao yahagi architects

 

 

 

japanese firm masao yahagi architects have recently completed the ‘house in gotemba’, a residence for a family of four within the shizuoka prefecture of japan. originally farmland at the base of mount fuji, the site was in need of costly improvements, leading to a configuration of rooms separated into four cores and stacked vertically to navigate the ground plane. maintaining the palimpsest of the previous farmland supported the budget restrictions, while minimizing contact area with the building eliminated the need to remedy any underlying issues with the earth.

 

the combined kitchen, living and dining area are elevated midway between a lower and upper level which inhabitants may descend or ascend into each individual room from the common space. stairways or wooden steps branch into the corner elements while openings wrapping the partition enclosures in horizontal bands to offer a 360 degree view inside and outside the structure from each location.

masao yahagi architects: house in gotemba four separate cores of rooms form the building footprint image © koichi torimura

masao yahagi architects: house in gotemba play area under house proportioned to small children image © koichi torimura

masao yahagi architects: house in gotemba lower level guest room image © koichi torimura

masao yahagi architects: house in gotemba dining area and kitchen beyond image © koichi torimura

masao yahagi architects: house in gotemba horizontal voids within the walls allow cross-communication between rooms images © koichi torimura

masao yahagi architects: house in gotemba (left) view from the kitchen towards the children’s room (right) view from the children’s room towards the kitchen images © koichi torimura

masao yahagi architects: house in gotemba bathroom image © koichi torimura

masao yahagi architects: house in gotemba at night image © koichi torimura

masao yahagi architects: house in gotemba floor plate beneath kitchen is elevated forming an outdoor play area image © koichi torimura

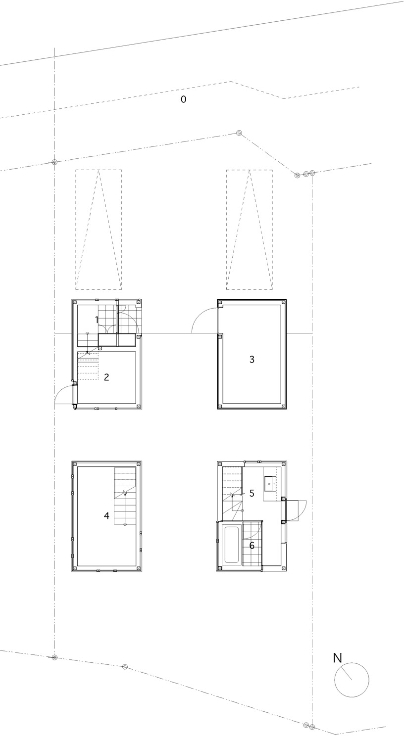
masao yahagi architects: house in gotemba floor plan / level 0 0. street 1. entrance hall 2. stage 3. bicycle parking lot 4. guest room 5. dressing room 6. bathroom

masao yahagi architects: house in gotemba floor plan / level 1 7. restroom 8. stairwell 9. master bedroom 10. LDK 11. connecting corridor 12. children’s room 1 13. children’s room 2 14. balcony

masao yahagi architects: house in gotemba floor plan / level 2 15. viewing platform 16. roof balcony 17. loft