masao yahagi architects angles house in tatemachi to filter light
photo by koichi torimura
all images courtesy of masao yahagi architects

 

 

 

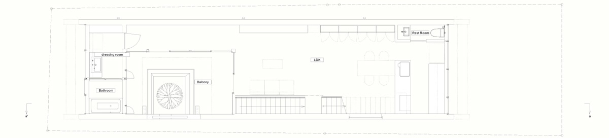
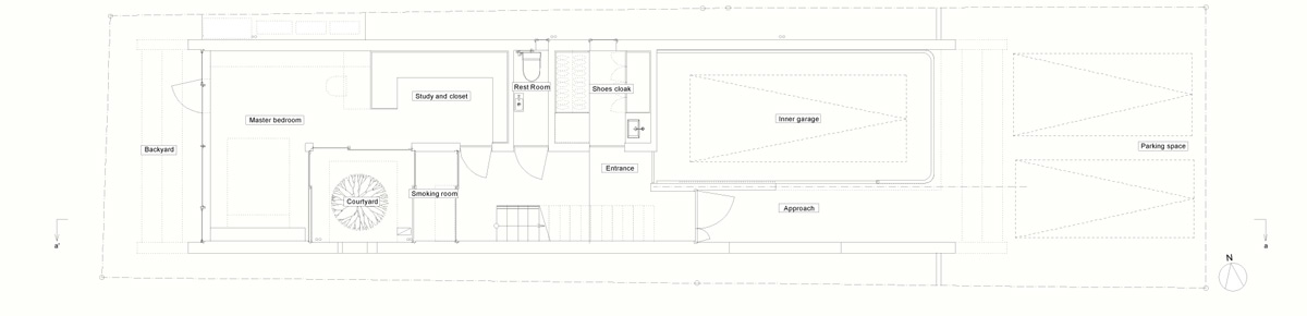
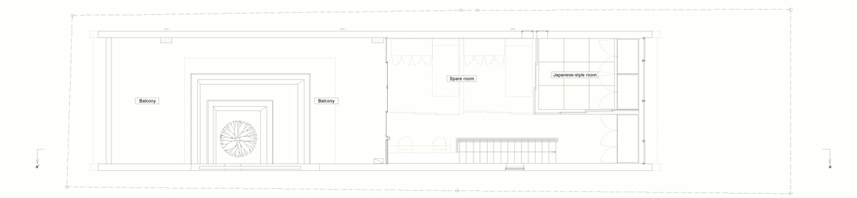
masao yahagi architects has designed ‘house in tatemachi’ seeking to balance the open qualities of daylight and ventilation, with a desired privacy from the surrounding urban context of kitakyushu, japan. located on a narrow site, the building measures 30 meters in length and is distinguished by two triangular forms on its primary façade. the first of which is made in frosted glass, while the other is inverted and screens an internal courtyard with wood slats.

masao yahagi architects house in tatemachi designboom

the house’s primary façade is distinguished by two triangular forms, one of frosted glass and the other in wood slats
photo by koichi torimura

 

 

 

the combination of an open cone-shaped internal courtyard and the large frosted glass window produce a balanced level of luminance throughout the house’s three levels. the building’s staircases travel sequentially along the southern wall, passing by the large triangular forms.

masao yahagi architects house in tatemachi designboom

the screened courtyard remains private while providing daylight and ventilation to interior spaces
photos by koichi torimura

masao yahagi architects house in tatemachi designboom

an open tread staircase hugs the southern wall
photo by koichi torimura

masao yahagi architects house in tatemachi designboom

the frosted glass window provides ample daylight while blocking views
photo by koichi torimura

masao yahagi architects house in tatemachi designboom

a traditional japanese room on the upper level
photo by koichi torimura

masao yahagi architects house in tatemachi designboom

sliding doors link the indoor space with the courtyard deck
photo by koichi torimura

masao yahagi architects house in tatemachi designboom

ground level rooms
photos by koichi torimura

masao yahagi architects house in tatemachi designboom

interior lighting illuminates the two triangular forms on the southern elevation
photo by koichi torimura

 

drawings

1/4
masao yahagi architects house in tatemachi designboom
 
masao yahagi architects house in tatemachi designboom
 
masao yahagi architects house in tatemachi designboom
 
masao yahagi architects house in tatemachi designboom
 

 

 

 

project info:

 

location: kitakyushu, fukuoka
year: 2013
site area: 182.23 sqm
building area: 77.26 sqm
building volume: 151.20 sqm
structure: steel
design: masao yahagi architects
collaborators: yoshiki sugimura
photography: koichi torimura