suburban house by masao yahagi contains nine different floor levels
photo by koichi torimura
all images courtesy of masao yahagi architects

 

 

 

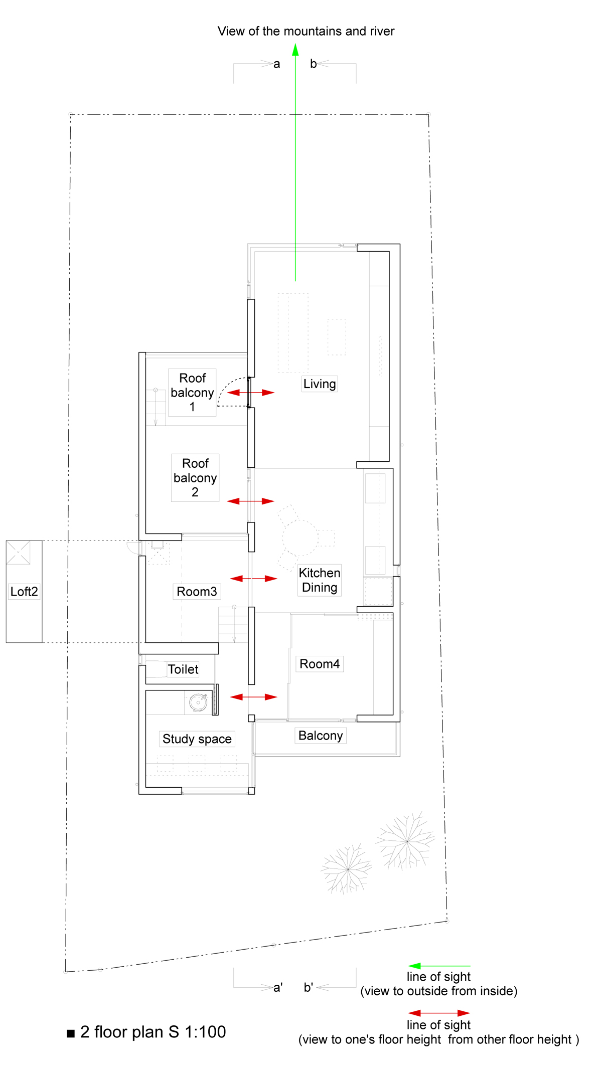
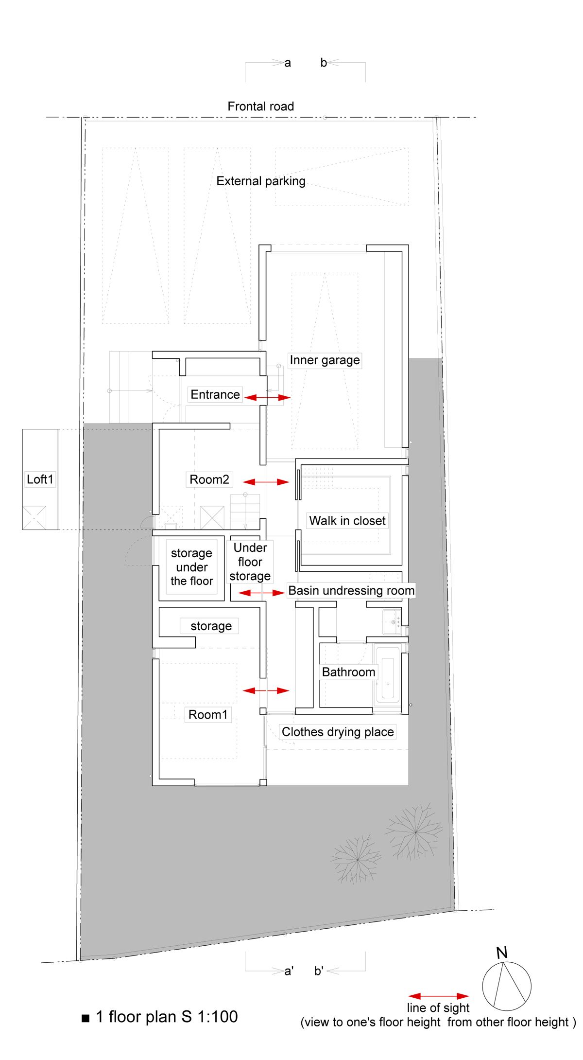
in a quiet suburban area of fukuoka, japanese architect masao yahagi has built a two storey house that provides its residents with scenic views of the adjacent natural landscape. surrounded by mountainous terrain, ‘house in tokurikishinmachi’ has been designed to include selective openings, allowing light and ventilation to pass inside the structure. internally, accommodation is spread across nine interstitial floor levels with a garage and dwelling’s primary sleeping quarters positioned at the lower level, and dining and living space positioned above.

masao yahagi architects house in tokurikishinmachi designboom
the home has been elevated to protect against potential flooding
photo by koichi torimura

masao yahagi architects house in tokurikishinmachi designboom
accommodation is spread across nine interstitial floor levels
photo by koichi torimura

masao yahagi architects house in tokurikishinmachi designboom
selective openings allow light and ventilation to pass inside the structure
photo by koichi torimura

masao yahagi architects house in tokurikishinmachi designboom
different floor levels within the home
photos by koichi torimura

masao yahagi architects house in tokurikishinmachi designboom
primary living space is positioned at the upper level of the plan
photos by koichi torimura

masao yahagi architects house in tokurikishinmachi designboom
a terrace offers views towards the surrounding mountain range
photos by koichi torimura

masao yahagi architects house in tokurikishinmachi designboom
‘house in tokurikishinmachi’ shown in the context of the neighborhood
photo by koichi torimura

 

drawings

1/4
masao yahagi architects house in tokurikishinmachi designboom
 
masao yahagi architects house in tokurikishinmachi designboom
 
masao yahagi architects house in tokurikishinmachi designboom
 
masao yahagi architects house in tokurikishinmachi designboom
 

 

project info:

 

name: house in tokurikishinmachi
location: kitakyushu, fukuoka
credit: masao yahagi architects
year: 2014
collaborators: kenji nawa nawakenji-m
site area: 195.08 sqm
building area: 72.87 sqm
architectural volume: 132.08 sqm
materials: wooden
photography: koichi torimura