all-wood mass timber building in portland, oregon is wrapped in a steel 'rain jacket'

all-wood mass timber building in portland, oregon is wrapped in a steel 'rain jacket'

waechter architecture brings ‘mississippi’ to portland, oregon

 

Waechter Architecture has recently unveiled its latest project, Mississippi, which stands in Portland, Oregon as the Pacific Northwest’s first ‘All-Wood’ mixed-use mass timber development. After a decade of meticulous planning and investigation, this cutting-edge building was conceptualized as a testament to sustainable building systems and innovative ‘all-wood’ construction technologies, while also serving as a workspace and platform for fostering new creative dialogues.

 

Strategically situated on a prominent site in Portland’s vibrant Mississippi Avenue District, the 9,555-square-foot structure represents a harmonious blend of individuality and community, flexibility and permanence, setting a new standard for sustainable and sensitive infill development in the area.

mass timber portland oregonimages © Lara Swimmer | @laraswimmer

 

 

all-wood wrapped in a steel ‘rain jacket’

 

Notably, Mississippi stands as the first commercial project in Oregon to utilize mass timber construction for all aspects of the building, with only a ‘rain jacket’ of weathering steel on the exterior and radiant concrete flooring as the exceptions. The interior surfaces of the building boast exposed wood without the need for additional finishes or fireproofing, creating a sense of simplicity and integrity rarely seen in conventional cross-laminated timber (CLT) or traditional frame projects. With this unique approach, the architects finish the spaces with a warmth, beauty, and durability.

 

In recognition of its innovative design, Waechter Architecture has been awarded a prestigious USDA/US Forest Service Wood Innovations Program grant to conduct further research on the building’s performance and explore potential applications of its pioneering approach in other commercial, institutional, and residential settings.

mass timber portland oregon

 

 

inside the mass-timber building

 

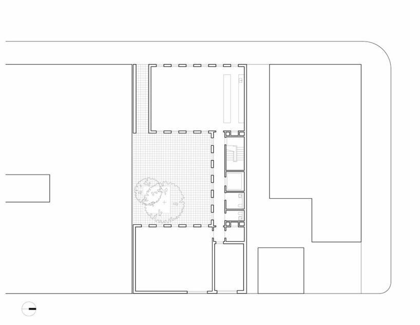
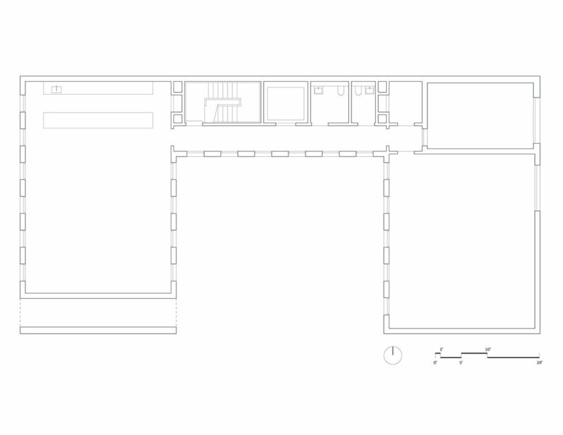
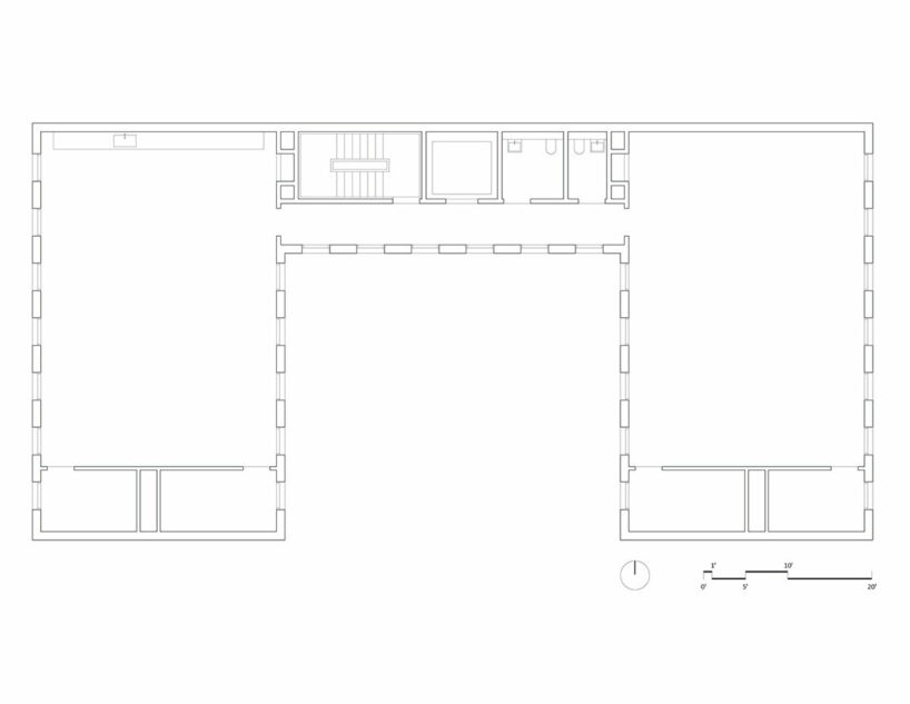
The organization of Mississippi is centered around the principles of economy, constructibility, and agility, resulting in the building being comprised of six equal rooms stacked in three tiers on each side of a shared courtyard. These clear span volumes are thoughtfully proportioned to accommodate a diverse range of uses and can be customized for autonomous use or combined with other spaces to create a cohesive ensemble. The heart of Mississippi features an open-air courtyard, which serves as a semi-private internal space, providing a tranquil transition and retreat from the bustling street while also serving as a versatile venue for various events, presentations, and informal gatherings.

mass timber portland oregon

 

 

future-forward

 

Looking towards the future, Mississippi has been designed with adaptability and transformation in mind, already catering to a range of uses. The ground level features a street-facing café, Capitola Coffee, which opens up to the courtyard and serves as a shared amenity for both the building’s occupants and the wider community. Additionally, a maker space, bicycle parking, and service area facing the alley are equipped to host workshops and support diverse forms of creative production. Currently, the second floor houses offices and meeting spaces, while the third floor boasts a residence.

mass timber portland oregon

 

 

Every decision, from the building’s spatial organization to the meticulous selection of healthy and highly efficient materials and building systems, such as all-electric, refrigerant-free, hydronic heating and cooling systems, reflects the principles of resilience and enduring design. The ultimate goal of Mississippi is to create a future-proof building that exudes a strong sense of identity, grace, and permanence, setting a benchmark for sustainable and innovative architecture in the region.

mass timber portland oregon

mississippi-waechter-architecture-mass-timber-portland-oregon-designboom-06a

mass timber portland oregon

mississippi-waechter-architecture-mass-timber-portland-oregon-designboom-08a

 

1/12
 
 
 
 
 
 
 
 
 
 
 
 

project info:

 

project title: Mississippi

architecture, interiors: Waechter Architecture | @waechter_architecture

location: Portland, Oregon

principal architect: Ben Waechter

project manager: Alexis Coir

photography: © Lara Swimmer | @laraswimmer

 

construction manager: Waechter Architecture

mass timber fabrication: KLH Massivholz (USA / Austria) 

mass timber installation: Mustang Ridge 

civil, structural engineer: KPFF 

mechanical, electrical, plumbing engineer: PAE 

code, fire protection: Code Unlimited 

construction management: Owen Gabbert LLC, Cutwater Design & Build Solutions 

landscaping: Cistus Nursery 

client, operator: 4224 N Mississippi LLC 

KEEP UP WITH OUR DAILY AND WEEKLY NEWSLETTERS
suscribe on designboom
- see sample
- see sample
suscribe on designboom

architecture in the US (1653)

steel architecture and design (390)

where people work (994)

wood and timber architecture and design (1391)

X
5