The Rosegold Apartment by Raúl Sánchez Architects

 

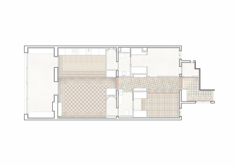
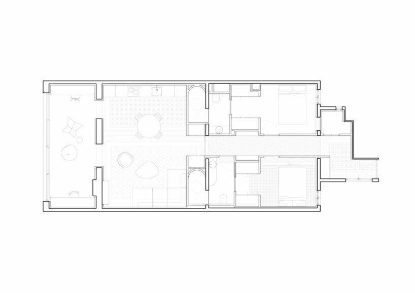
Raúl Sánchez Architects has designed the Rosegold Apartment in Barcelona, Spain, spanning 85 square meters. Originally, it was part of a larger apartment split into two, with facades on Enric Granados Street and a generous interior courtyard. This division shifted the apartment’s layout, relocating the entrance to the interior, leading towards a spacious gallery room overlooking the courtyard. The architects carefully preserved the intricate ‘nolla’ mosaic flooring, showcasing valuable drawings and colors. Within a compact space of just over 6 meters, two bedrooms were strategically positioned towards interior courtyards, allowing the living areas to connect seamlessly with the backyard. Guided by metal-clad fronts with a rosegold finish, visitors are directed from the entrance to the daytime spaces, interrupted only by dark blue lacquered wooden shelves. The transition in height, highlighted by original wooden beams, extends through partitions, maintaining visual continuity. This variation in height is further accentuated by a subtle change in color.

metal-clad fronts guide residents through raúl sánchez's rosegold apartment in spain
all images José Hevia

 

 

Restoration Details of the Rosegold Apartment

 

The design team at Raúl Sánchez preserved and restored all original flooring to its former glory during the construction process. In areas where the mosaic was missing, they installed new microcement flooring with a subtly broken white finish. The rosegold theme extends to the kitchen’s chosen stone, a Portuguese pink marble crafted from rejected pieces, resulting in its unique assembly. Both bedrooms feature small annexes serving as dressing rooms and their own bathrooms, one of which is accessible from the hallway. They are furnished with water-resistant varnished MDF boards, a material echoed in the shelves and cabinet handles throughout. In the living room, a section of the existing wall between two passageways connecting it to the gallery was adorned with gold leaf, obscuring its load-bearing function. This addition imbues the space with a more symbolic and abstract presence, acting as a conduit to the exterior and reflecting light from the backyard. Thus, upon entering the hallway from the entrance, the view to the opposite end reveals the exterior next to the gold leaf-covered wall.

metal-clad fronts guide residents through raúl sánchez's rosegold apartment in spain
gold leaf adornment in the living room reflects light from the backyard

metal-clad fronts guide residents through raúl sánchez's rosegold apartment in spain
preserving the intricate ‘Nolla’ Mosaic flooring

metal-clad fronts guide residents through raúl sánchez's rosegold apartment in spain
original wooden beams highlight the transition in height

metal-clad fronts guide residents through raúl sánchez's rosegold apartment in spain
rosegold-finished metal-clad fronts lead to daytime spaces

metal-clad fronts guide residents through raúl sánchez's rosegold apartment in spain

metal-clad fronts guide residents through raúl sánchez's rosegold apartment in spain
Portuguese pink marble kitchen countertops crafted from rejected pieces

metal-clad fronts guide residents through raúl sánchez's rosegold apartment in spain metal-clad fronts guide residents through raúl sánchez's rosegold apartment in spain  

 

 

1/18
dark blue lacquered wooden shelves accentuate design elements
dark blue lacquered wooden shelves accentuate design elements
the bedrooms are positioned towards interior courtyard
the bedrooms are positioned towards interior courtyard
water-resistant varnished mdf boards furnish bedrooms and bathrooms
water-resistant varnished mdf boards furnish bedrooms and bathrooms
 
 
 
 
 
 
 
 
 
 
 
 
 
 
 

project info:

 

name: Rosegold Apartament

architecture: Raúl Sánchez | @raulsanchezarchitects
location: Neighbourhood of Eixample Derecho, Barcelona

construction: May 2023- October 2023
built area: 85 sqm
budget: <150.000€

photography: José Hevia 

 

design team

architecture: Paolo Burattini, Flavia Thalisa Gütermann
engineering: Marés ingenieros
textil design: Catalina Montaña 
art: courtesy of Víctor Lope Arte Contemporáneo
picture at the gallery: Lumen III, 2018, Francisco Suárez
picture at the living: Equilibrio 01, 2022, Carsten Beck
sculpture at the hallway: MML, 2019, Jacinto Moros
builder: GAECO SL.
carpentry works: Vallés carpintería
reclaimed marble: Leleni
furnishings: Sofa by Kragelund; coffe tables by Hay; bed side tables by Kartell; cork stool by Vitra; lamps by Vibia, Vitra, Artemide and Faro; chaise lounge by Sancal; dining table by Richard Lampert; chairs imitation Cesca-Breuer