
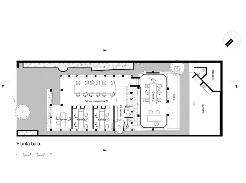
the nordeste offices are enveloped in a diverse collage of textures

the floor area of the pavilion is one meter lower than the street level
KEEP UP WITH OUR DAILY AND WEEKLY NEWSLETTERS
snøhetta wins an international competition to design the qiantang bay art museum for the riverfront of hangzhou.
the project will make its debut during the 2026 winter olympics in milan, and will then be moved to its permanent location in the alps to serve as a safe resting point for climbers and trekkers.
a system of platforms endlessly reshapes the exhibition spaces within the restored shell of the former grands magasins du louvre.
bjarke ingels' faith park in tirana will celebrate spiritual diversity with a series of pavilions and gardens along the albanian hillside.
images © 















