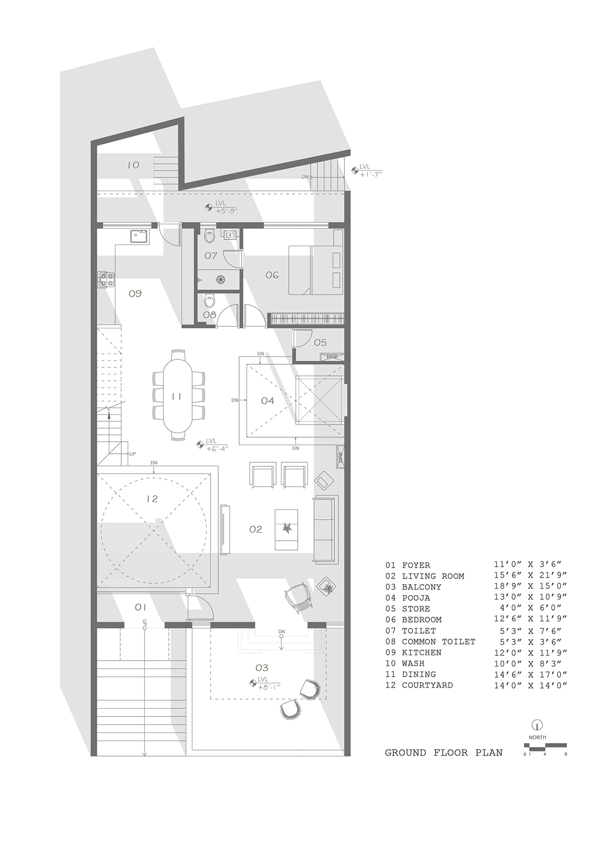
this project in india draws from the client’s occupation as an agriculturist, with greenery and vegetation found both inside and outside the residence. designed by neogenesis + studi0261, a practice based in the indian state of gujarat, ‘jungalow’ is articulated around an internal courtyard visible from each of the property’s three storeys. other references to urban farming include plants located on the building’s roof, balcony, and ground floor terrace.

neogenesis studi0261
all images by the fishy project

 

 

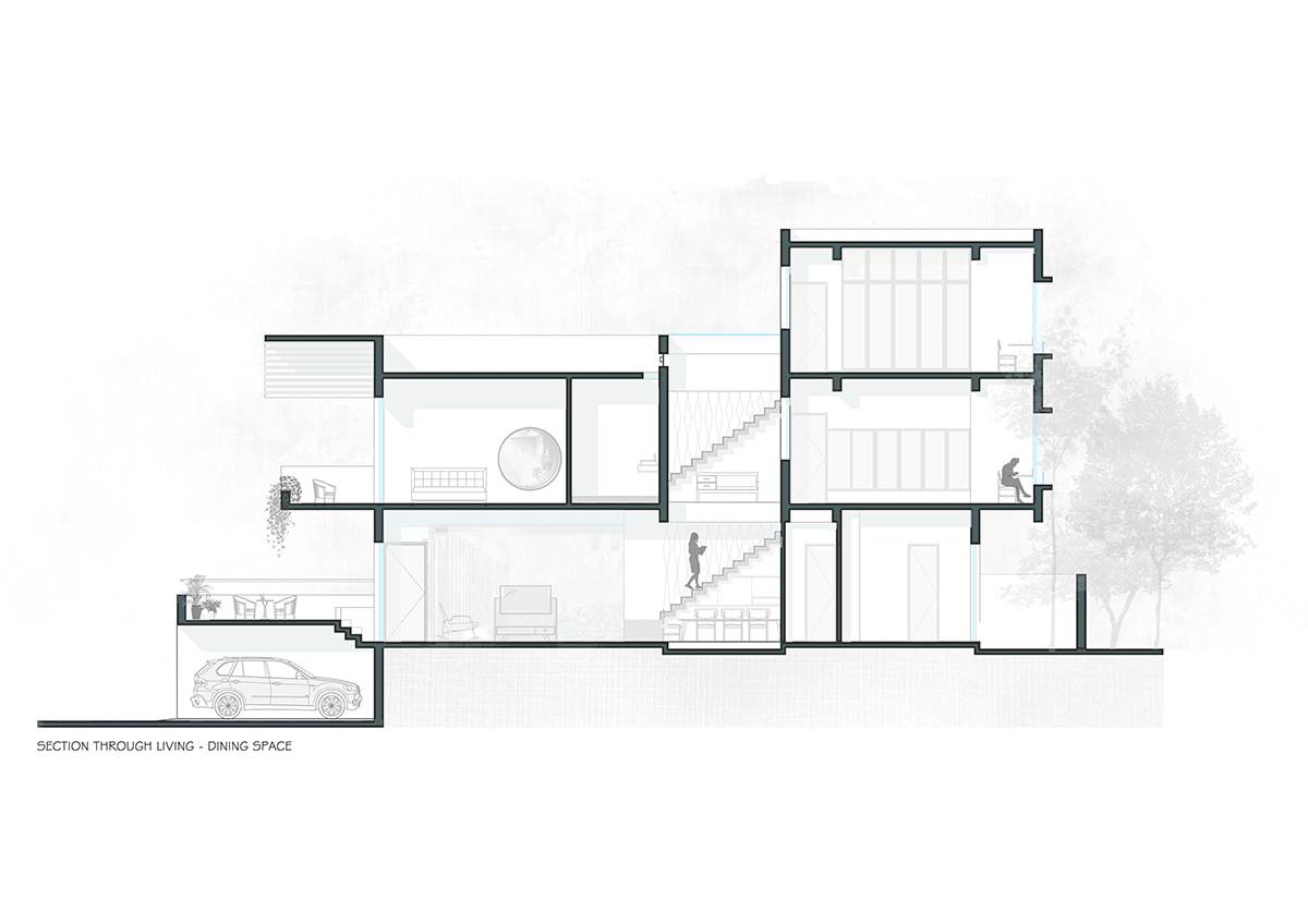
located on the outskirts of surat, a large city on the tapi river, the centerpiece of neogenesis + studi0261’s design is a courtyard filled with creepers and climbing plants. forming a ‘green curtain’, the courtyard helps filter sunlight and noise emanating from the rear of the property. the ground floor includes cooking and dining facilities, alongside a lounge that adjoins an external terrace and a bedroom. finally, a triple-height temple acts as a chimney, ensuring natural ventilation.

neogenesis studi0261
greenery and vegetation is found both inside and outside the residence

 

 

the first floor contains a family space in addition to three bedrooms, each with en-suite bathrooms. the uppermost storey has two further bedrooms where circular windows frame external views. in order to enhance the appearance of the vegetation, simple building materials have been employed throughout, with natural light used to illuminate the majority of living space.

neogenesis studi0261
the project is articulated around an internal courtyard

neogenesis studi0261
the ground floor includes cooking and dining space

neogenesis studi0261
a triple-height temple acts as a chimney, ensuring natural ventilation

neogenesis studi0261
the ‘green curtain’ helps filter sunlight and noise

neogenesis studi0261
the courtyard is filled with creepers and climbing plants

neogenesis studi0261
vegetation is located on the building’s roof, balcony, and ground floor terrace

neogenesis studi0261
circular windows frame external views

neogenesis studi0261
titled ‘jungalow’, the house is located on the outskirts of surat, a large city on the tapi river

 

 

1/4
neogenesis studi0261 jungalow interiors india designboom
 
neogenesis studi0261 jungalow interiors india designboom
 
neogenesis studi0261 jungalow interiors india designboom
 
neogenesis studi0261 jungalow interiors india designboom
 

project info:

 

name: jungalow
architecture firm: neogenesis + studi0261
lead architects: chinmay laiwala, jigar asarawala, tarika asarawala
design team: gopal suthar, umesh anghan
project location: surat, india
completed: march 2017
gross built area: 6,000 sqf / 557 sqm
structural engineer: mahendrasinh b solanki
contractor: munnabhai
photography: the fishy project, ishita sitwala