revitalizing an old bow truss warehouse

 

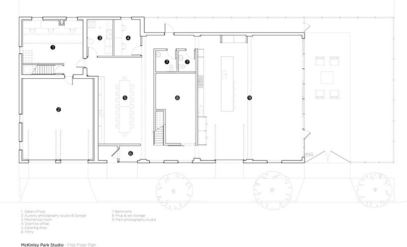
a chicago photographer approached 34-TEN with a problem they needed help solving: the careful conversion of a pre-existing 4,700  sqft (436 sqm) bow truss warehouse into a professional photography studio. the renovated building needed to house staff offices, a client lounge, ample storage, and a large open space that could accommodate both motion and still photography used in advertising.

34-TEN transforms old chicago bow truss warehouse into light-filled photography studio
view of the renovated warehouse at night

 

divided into two zones

 

34-TEN’s primary solution was to divide the space into two distinct zones — a client services zone and a photography zone. the architects have separated the two areas with a 400 sqft ( 37 sqm) mezzanine which allows clients to observe the photography shoots from above, while also providing storage for props below it. the existing masonry wall at the north wall of the photography space was removed to make way for the installation of a polycarbonate daylighting system which provides diffuse and even lighting throughout the day.

 

simple decisions such as reutilizing existing masonry window and garage door openings gave the owner the opportunity to invest in new infrastructures, such as heating and cooling systems, which had not been updated in the building’s 80-year history. now, the converted warehouse building is a bustling creative business, satisfying the client’s professional needs and contributing to the revitalization of the neighborhood.

34-TEN transforms old chicago bow truss warehouse into light-filled photography studio
view of the renovated warehouse at night

34-TEN transforms old chicago bow truss warehouse into light-filled photography studio
the blue entrance signifies the main access point of the studio

mckinley park studio 1
the light-filled interior

mckinley park studio 5
view of the mezzanine level

mckinley park studio 6
view of the client lounge

 

1/5
 
 
 
 
 

project info:

 

name: mckinley park studio
designer: 34-TEN

 

 

designboom has received this project from our ‘DIY submissions‘ feature, where we welcome our readers to submit their own work for publication. see more project submissions from our readers here.

 

edited by: myrto katsikopoulou | designboom