
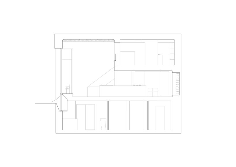
a 50 sqm mezzanine overlooks the main retail floor

staircase leading to the optometrist’s examination room
KEEP UP WITH OUR DAILY AND WEEKLY NEWSLETTERS
happening now! florim and studio nicola gallizia pay tribute to italy’s architectural legacy by transforming historical materials into contemporary surfaces.
'this building says to the world, harlem matters. black art matters. black institutions matter,' raymond j. mcguire, chairman of the board of trustees, said during the museum's preview opening.
snøhetta wins an international competition to design the qiantang bay art museum for the riverfront of hangzhou.
the project will make its debut during the 2026 winter olympics in milan, and will then be moved to its permanent location in the alps to serve as a safe resting point for climbers and trekkers.
a system of platforms endlessly reshapes the exhibition spaces within the restored shell of the former grands magasins du louvre.











