light-filled counterpoint house by paul raff occupies a narrow plot in suburban toronto
all images by ben rahn / A-frame

 

 

 

situated on a narrow lot in a leafy toronto neighborhood, ‘counterpoint house’ is a lofty, light-filled home for a family of four. the dwelling was completed by canadian architect paul raff, whose brief was to design a residence with open, interconnected living spaces imbued with a strong connection to nature. its function and flow facilitate the many family-oriented endeavors the clients sought. at the same time, the unusual split level stepping of its upper floors and bold window openings create a feeling of spaciousness.

paul raff studio counterpoint house toronto canada designboom
the project is situated on a narrow lot in a leafy toronto neighborhood

 

 

 

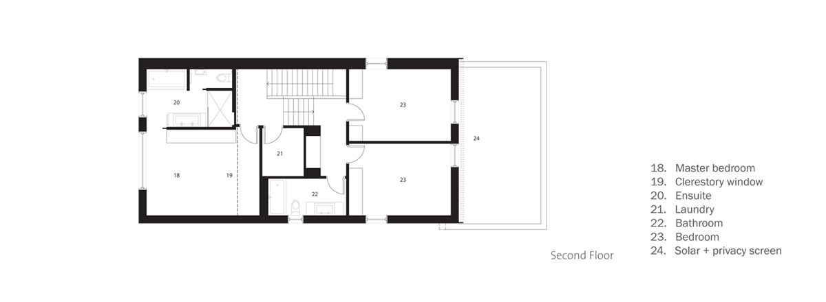
natural light is one of the main drivers of the design. the upper levels of the house are set back from the street, allowing a large south-facing clerestory window to flood the center of the house with sunlight. the southern elevation features a sculptural solar reflector screen made up of 220 ‘light shelves’. these horizontal aluminum slats have a high coefficient of reflectivity, and bounce sunlight deep into the space.

paul raff studio counterpoint house toronto canada designboom
the dwelling is a lofty, light-filled home for a family of four

 

 

 

south light in a northern climate is wonderful for helping heat the house in winter, but can create too high a glare to be comfortable,’ explains architect paul raff. ‘the solar reflector screen solves that, while creating a dynamic play of delicate shadows, which to me is the visual equivalent of harp music.’

paul raff studio counterpoint house toronto canada designboom
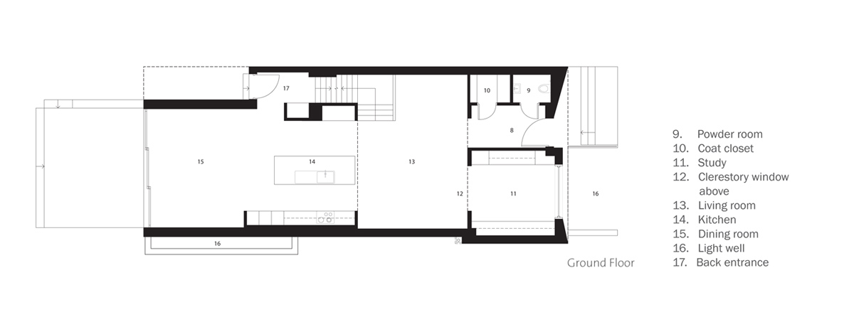
the dining area at ground floor level

 

 

 

wall-to-wall glazing on the ground floor frames a view into the shade garden on the north side of the house. meanwhile, a clerestory window on the upper level illuminates the staircase and master bedroom with soft northern light.

paul raff studio counterpoint house toronto canada designboom
each area of the home shares a direct connection with nature and the outside world

paul raff studio counterpoint house toronto canada designboom
children’s play area at basement level

paul raff studio counterpoint house toronto canada designboom
the comfortably furnished master bedroom

paul raff studio counterpoint house toronto canada designboom
the rear of the property at dusk

paul raff studio counterpoint house toronto canada designboom
the house shown as part of the neighborhood streetscape

 

drawings

1/4
paul raff studio counterpoint house toronto canada designboom
 
paul raff studio counterpoint house toronto canada designboom
 
paul raff studio counterpoint house toronto canada designboom
 
paul raff studio counterpoint house toronto canada designboom
 

 

 

project info:

 

name: counterpoint house
location: toronto, canada
property area: 404 sqm (4,344 sqf)
total house size: 356 sqm (3,837 sqf) including basement / 232 sqm (2,500 sqf) not including basement
completion: 2014

 

project team: paul raff, samantha scroggie, sean solowski, scott barker, ladan sharifpour
architecture: paul raff studio
interior design: paul raff studio
structural engineers: neumann associates limited
mechanical engineers: bowser technical inc.
general contractor: severn woods