
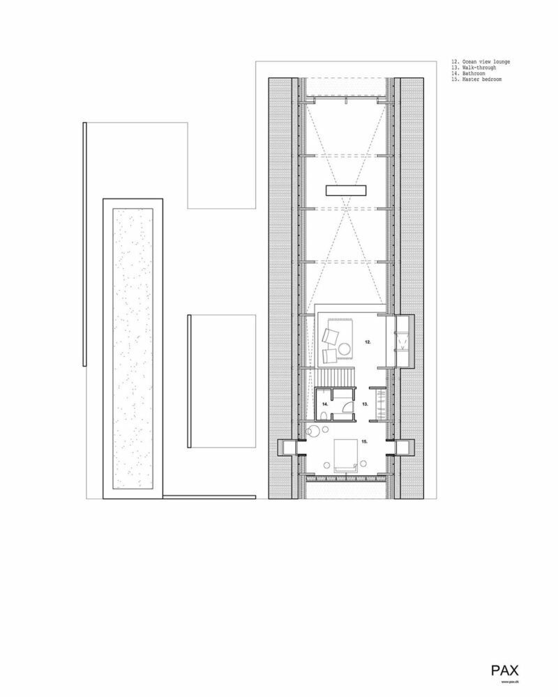
lofty interiors are flooded with natural sunlight

an upper-level loft is illuminated by a large, sloping skylight
KEEP UP WITH OUR DAILY AND WEEKLY NEWSLETTERS
the founders of amateur architecture studio have been appointed curators of the 20th international architecture exhibition, opening may 8th, 2027.
connections: 12
the project sits like a ring placed over the terrain, with its funnel-like roof forming a shaded perimeter walkway and an introverted core.
'this building says to the world, harlem matters. black art matters. black institutions matter,' raymond j. mcguire, chairman of the board of trustees, said during the museum's preview opening.
snøhetta wins an international competition to design the qiantang bay art museum for the riverfront of hangzhou.
images © 


an acoustic interior finish lines the sloping ceiling
open interior spaces are rhythmically divided by the exposed timber structure








