french architecture studios hebbelinck and hart berteloot AAT present the renovation and extension of a derelict market building in montataire. entitled ‘the perret hall,’ the transformative project introduces an array of creative-oriented educational programs and maker spaces. the initial design strategy called for the stripping of the deteriorating brutalist-like structure to its slender concrete framework. the decision to open up and expose this structure transformed the space, introducing an interior bathed in natural sunlight.

perret hall hebbelinck hart berteloot
all images © françois brix

 

 

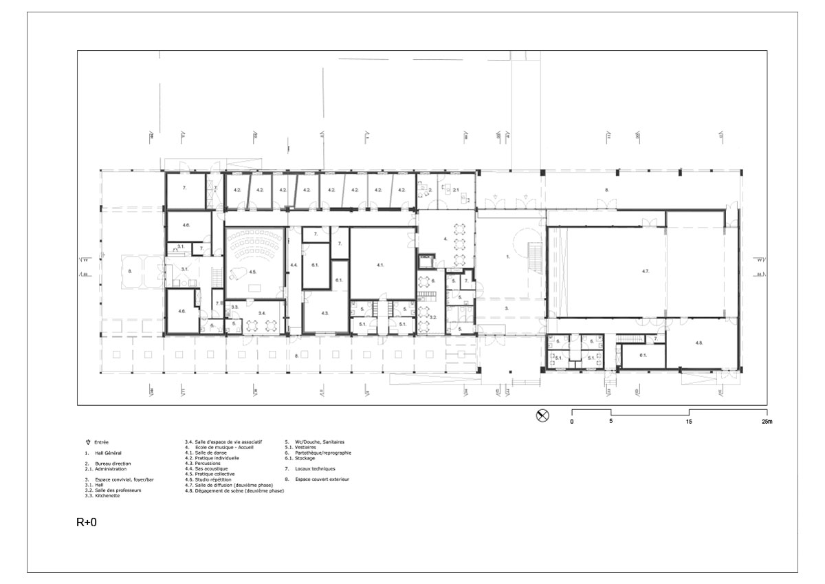
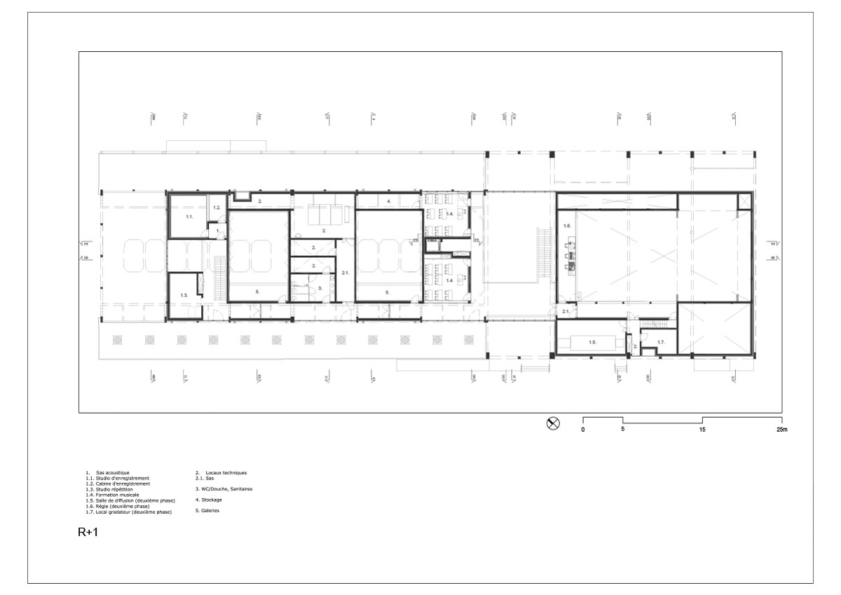
atelier hebbelinck, together with hart berteloot AAT, preserved the industrial characteristics of the original perret brothers market building. the project transformed the abandoned building with the intervention of such programs as a music school, a dance school, a broadcast room, and a recording studio. the three facilities take advantage of the height of the central wing to integrate the structural core, extending from one end to the other. the studio further liberated the zone between the frame and the program to offer gathering space and facilities for artistic expression, extending out to the street. the double height enhances the acoustic quality of the large centralized halls and take advantage of the natural lighting overhead.

perret hall hebbelinck hart berteloot

perret hall hebbelinck hart berteloot perret hall hebbelinck hart berteloot perret hall hebbelinck hart berteloot perret hall hebbelinck hart berteloot perret hall hebbelinck hart berteloot perret hall hebbelinck hart berteloot perret hall hebbelinck hart berteloot perret hall hebbelinck hart berteloot perret hall hebbelinck hart berteloot perret hall hebbelinck hart berteloot perret hall hebbelinck hart berteloot perret hall hebbelinck hart berteloot perret hall hebbelinck hart berteloot

 

 

1/4
ground floor plan
 
first floor plan
 
roof plan
 
long sections
 

project info:

 

project name: the perret hall — cultural center of montataire

architecture firm: atelier d’architecture pierre hebbelinck and hart-berteloot AAT

location: montataire, france

completion: 2018

client: city of montataire

partners: egis / philippe duval / artscéno / kahle / technicity / joseph abram / pierre toby

photography: © françois brix