pitsou kedem architects
have constructed an elegant private residence situated between two courtyards, flooding the home’s interior with natural light.
as a result ‘ramat hasharon house 13’, a brilliant white cubic volume, is able to form an intimate relationship with its surrounding environment.

pitsou kedem set ramat hasharon house amid two courtyards
all images courtesy of pitsou kedem architects

 

 

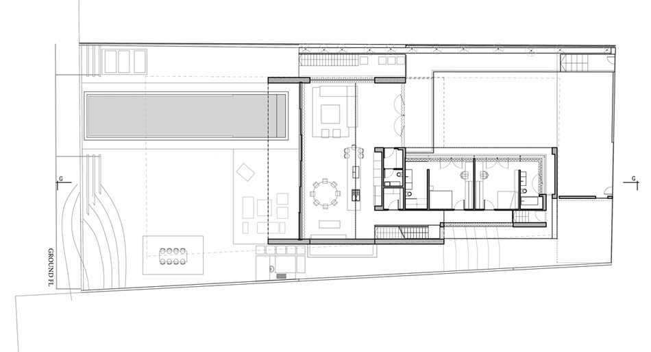
on approaching the house, an elongated bridge crosses a sunken front courtyard and leads to a spacious double-height living area. central to the scheme, this six-meter high room shares a connection with both the front yard, and a larger garden at the rear of the design. with no supporting columns, the structure’s glazed façade opens entirely onto the courtyard, removing the division between internal and external space.

pitsou kedem set ramat hasharon house amid two courtyards
the volume’s glazed façade opens entirely onto the rear courtyard

 

 

the project’s master bedroom is located on the second floor, overlooking the open-plan living quarters below. a perpendicular twenty meter pool protrudes from the rear of design, reflecting, and consequently emphasizing, the visual mass of the building. 

pitsou kedem set ramat hasharon house amid two courtyards
the rear façade can be completely secured

pitsou kedem set ramat hasharon house amid two courtyards
the double-height living space

pitsou kedem set ramat hasharon house amid two courtyards
the volume is connected to both the front and rear courtyards

pitsou kedem set ramat hasharon house amid two courtyards
the living space is flooded with natural light

pitsou kedem set ramat hasharon house amid two courtyards
the six meter high glazed façade can be fully retracted

pitsou kedem set ramat hasharon house amid two courtyards
the space opening out onto the sunken front courtyard

pitsou kedem set ramat hasharon house amid two courtyards
the front courtyard brings light into other areas of the project

1/11
pitsou kedem ramat hasharon house 13 designboom
 
pitsou kedem ramat hasharon house 13 designboom
 
pitsou kedem ramat hasharon house 13 designboom
 
pitsou kedem ramat hasharon house 13 designboom
 
pitsou kedem ramat hasharon house 13 designboom
 
pitsou kedem ramat hasharon house 13 designboom
 
pitsou kedem ramat hasharon house 13 designboom
 
pitsou kedem ramat hasharon house 13 designboom
 
pitsou kedem ramat hasharon house 13 designboom
 
pitsou kedem ramat hasharon house 13 designboom
 
pitsou kedem ramat hasharon house 13 designboom
 

Save

Save