KEEP UP WITH OUR DAILY AND WEEKLY NEWSLETTERS
'this building says to the world, harlem matters. black art matters. black institutions matter,' raymond j. mcguire, chairman of the board of trustees, said during the museum's preview opening.
snøhetta wins an international competition to design the qiantang bay art museum for the riverfront of hangzhou.
the project will make its debut during the 2026 winter olympics in milan, and will then be moved to its permanent location in the alps to serve as a safe resting point for climbers and trekkers.
a system of platforms endlessly reshapes the exhibition spaces within the restored shell of the former grands magasins du louvre.

a fabric skin provides sun shade and contrast to the hard-surfaced contextphoto © bartosz kolonko
the color and form of the applied facade are indicative of the organic program insidephoto © bartosz kolonko
panels can be rotated electronically by the user according to the desired level of privacy and shadingphoto © bartosz kolonko
‘tony’s organic club’ joins the pudong skylinephoto © bartosz kolonko
46 individual strings make up each panel, allowing more flexibility than a solid textilephoto © bartosz kolonko
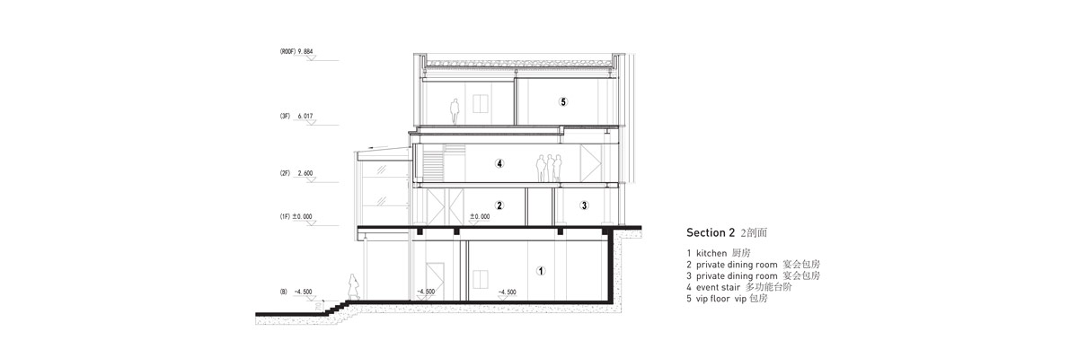
show kitchenphoto © bartosz kolonko
dining areaphoto © bartosz kolonko
bar and restaurant at the ground floorphoto © bartosz kolonko
locally sourced wood is used throughout the project, giving warmth to the expansive spacephoto © bartosz kolonko
flexibility of the arrangements of platforms at the stair accommodate a wide variety of presentations, exhibitions, receptions, and meetingsphoto © bartosz kolonko
after falling into dis-repair the pavilion was renovated with a new floor and split level accommodating the vip dining areaphoto © bartosz kolonko
led lights illuminate each panel of the facadephoto © bartosz kolonko
detail of the double layer of stringsimage ©
(left): bi-colored dual layered strings create a moiré effect(right): skin detail. image © peter dixie/lotan architectural photograph






