KEEP UP WITH OUR DAILY AND WEEKLY NEWSLETTERS
the founders of amateur architecture studio have been appointed curators of the 20th international architecture exhibition, opening may 8th, 2027.
connections: 12
the project sits like a ring placed over the terrain, with its funnel-like roof forming a shaded perimeter walkway and an introverted core.
'this building says to the world, harlem matters. black art matters. black institutions matter,' raymond j. mcguire, chairman of the board of trustees, said during the museum's preview opening.
snøhetta wins an international competition to design the qiantang bay art museum for the riverfront of hangzhou.
real elevation opens to a yard with a pool and lounging area
fortress-like side elevation
horizontal bands of full-height windows interrupted with columns hearkens to modernist detailing
main entrance
dining room
living room opens to swimming pool and nature
open the fortress-like exterior enclosure to the encompassing environment
programmatic masses connect to a double-storey living space
back yard
at dusk
street elevation
aerial view of site
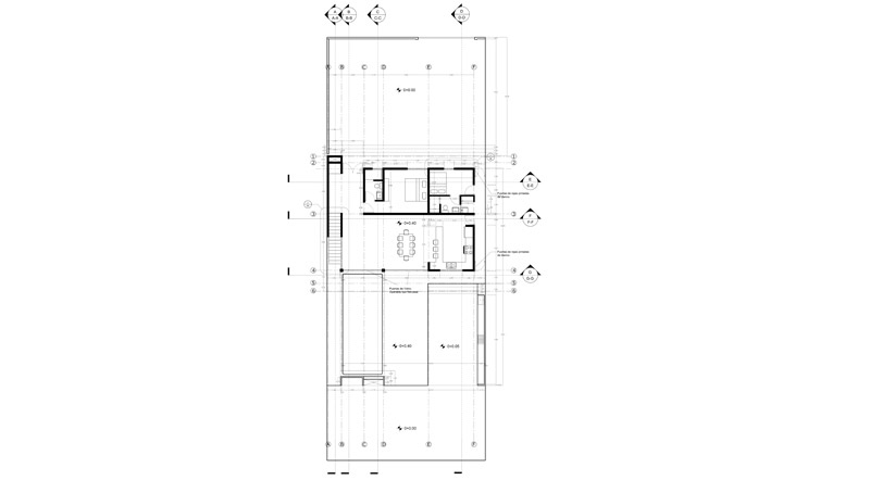
floor plan / level 0
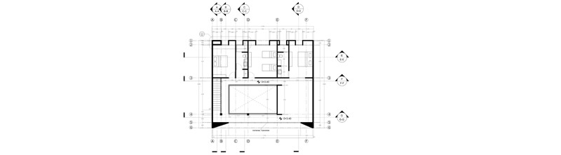
floor plan / level 1
roof plan
elevations
elevations



axonometric