PRAUD elevates zinc-clad leaning house over korean countryside
photo by kyungsub shin
all images courtesy of PRAUD

 

 

 

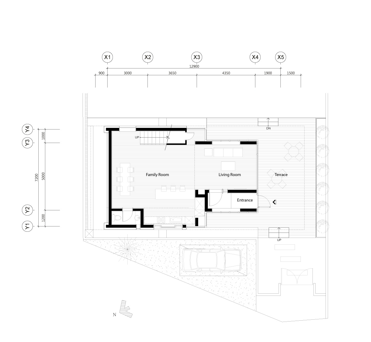
close to the chungpyong lake in south korea, research and design studio PRAUD has crafted a two-storey residence that bridges the complex dichotomy between topography and orientation. the dwelling, appropriately titled ‘leaning house’, is lifted at its southern edge allowing copious amounts of sunlight to enter the home.

PRAUD leaning house chungpyong korea
the dwelling is lifted at its southern edge allowing copious amounts of sunlight to enter the home
photo by kyungsub shin

 

 

 

instead of adding separate structure to the building, the form of massing works as its own supporting system, with a glazed box below that eliminates the need for further structural elements. internally, the inclined nature of the design allows for additional floor space, with a living room with an adjoining terrace positioned at the upper level of the plan. externally, the property treats each surface as part of one singular box using zinc to wrap the entirety of the building. continuous diagonal lines help to increase the home’s legibility against the undulating terrain.

PRAUD leaning house chungpyong korea
instead of adding separate structure to the building, the form of massing works as a supportive system
photo by kyungsub shin

PRAUD leaning house chungpyong korea
the inclined nature of the design allows for additional internal floor space
photo by kyungsub shin

PRAUD leaning house chungpyong korea
a living room with adjoining terrace is positioned at the upper level of the plan
photo by kyungsub shin

PRAUD leaning house chungpyong korea
the elevated volume sits above a glazed box
photo by kyungsub shin

PRAUD leaning house chungpyong korea
the property treats each surface as part of one singular box using zinc to wrap the entirety of the building
photo by kyungsub shin

PRAUD leaning house chungpyong korea
brightly lit living accommodation
photo by kyungsub shin

PRAUD leaning house chungpyong korea
an expansive terrace at ground floor level
photo by kyungsub shin

PRAUD leaning house chungpyong korea
continuous diagonal lines help to increase the home’s legibility
photo by kyungsub shin

 

1/19
PRAUD leaning house chungpyong korea designboom
 
PRAUD leaning house chungpyong korea designboom
 
PRAUD leaning house chungpyong korea designboom
 
PRAUD leaning house chungpyong korea designboom
 
PRAUD leaning house chungpyong korea designboom
 
PRAUD leaning house chungpyong korea designboom
 
PRAUD leaning house chungpyong korea designboom
 
PRAUD leaning house chungpyong korea designboom
 
PRAUD leaning house chungpyong korea designboom
 
PRAUD leaning house chungpyong korea designboom
 
PRAUD leaning house chungpyong korea designboom
 
PRAUD leaning house chungpyong korea designboom
 
PRAUD leaning house chungpyong korea designboom
 
PRAUD leaning house chungpyong korea designboom
 
PRAUD leaning house chungpyong korea designboom
 
PRAUD leaning house chungpyong korea designboom
 
PRAUD leaning house chungpyong korea designboom
 
PRAUD leaning house chungpyong korea designboom
 
PRAUD leaning house chungpyong korea designboom
 

 

project info:

 

architect: PRAUD
principal in charge: dongwoo yim, rafael luna
local architect: SJAI
landscape: changbok yim, PRAUD
lighting design: changbok yim, PRAUD
program: home-office
location: chungpyong, south korea
site area: 482 sqm
built area: 96 sqm
floor area: 127 sqm
material: zinc, IPE wood
photography: kyungsub shin