designers anna busch and monika binkowska introduce ‘projekt datscha’, a wooden tiny house on wheels, built for minimalists and nature lovers. currently parked in steiermark, austria, the cabin can be transported to any desired location, while still providing a comfortable, warm, fully equipped environment to the users. 

project datscha a transportable tiny home 1
all images by magda tracz, anna busch and monika binkowska

 

 

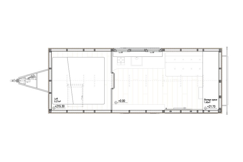
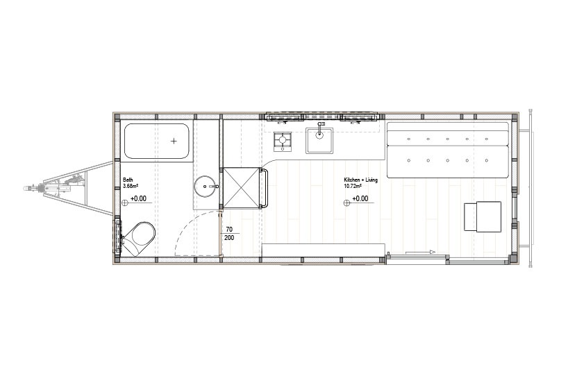
for ‘projekt datscha’, anna busch and monika binkowska wanted to design a prefabricated house that still showcases a unique, customizable design. in order to obtain towing permission, the structure had to meet the same legal requirements as a truck trailer, in terms of maximum height, width, and weight. the spruce framing and metal supports give the cabin the required structural integrity to withstand 120km/h headwinds while towing. in order to stay within the allowed weight limit of 3,5 tones, only lightweight construction materials were used, such as aluminum windows, PIR insulation and balsa plywood. 

project datscha a transportable tiny home 6

 

 

one of the biggest challenges of designing a house that is only 4m high and 2,55m wide, was fitting all desired functions into such a constrained space. the 18m2 interior features a main living area with a kitchen, sleeping loft, and bathtub-equipped bathroom. in order to save space, the designers installed a custom-made folding table and a sleeping couch, but avoided other transformable furniture, as they tend to be impractical. the house features a smart infra-rot heating system and water boiler, that require connection to electricity. in case there’s no power, the house can still operate off-grid, thanks to the alcohol stove and smell-free composting toilet.

project datscha a transportable tiny home 7

 

 

the structure is topped with a gable roof, as it is the most iconic depiction of a house. all external elements such as rain gutters and window covers are well-fitted, creating a minimal, sleek form. the house uses light, lively colors and integrates harmoniously into the natural surroundings. large windows allow the light to permeate the interior, while the opening on the roof allows occupants to stargaze at night. this small, yet spacious house is ideal for 2, though it can comfortably fit up to 4 people. ‘projekt datscha’ will be available for rent, starting in spring 2021.

project datscha a transportable tiny home 10

project datscha a transportable tiny home 9

project datscha a transportable tiny home 11

project datscha a transportable tiny home 12

project datscha a transportable tiny home 2

project datscha a transportable tiny home 3

project datscha a transportable tiny home 4

project datscha a transportable tiny home 5

 

 

project info:

 

name: projekt datscha
designers: anna busch, monika binkowska

 

 

designboom has received this project from our ‘DIY submissions‘ feature, where we welcome our readers to submit their own work for publication. see more project submissions from our readers here.

 

edited by: myrto katsikopoulou | designboom