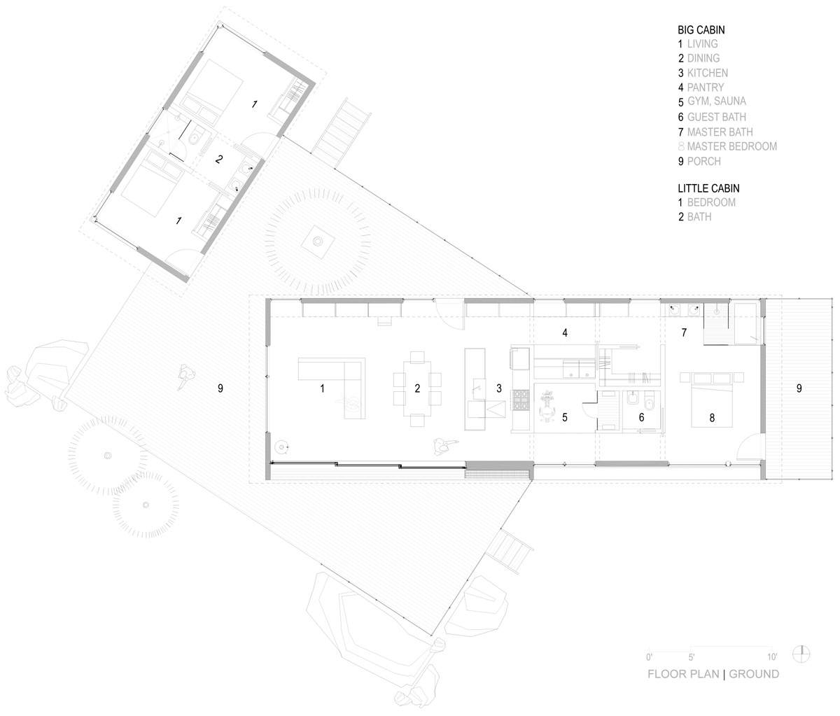
the word ‘cabin’ evokes a very specific image for most. it has a very strong cultural association, especially in america, evoking a log cabin in the woods with a chimney smoking away. this is a place to escape society and enjoy nature in rustic comfort. this home in colorado named ‘big cabin | little cabin’ channels this feeling of the american west.

renee del gaudio
all images by david lauer photography

 

 

yet, names can be deceiving. while this cabin by renée del gaudio keeps a lot of the same themes as the classic cabin, it adds many new elements that make for a unique reading. the result is a contemporary and luxurious dwelling, that evokes a 5 star hotel more than a rustic retreat. a traditional cabin tends to have a more enclosed cozy effect, using small windows and thick walls to keep the interior warm, almost like the cave of bear. this residence has the opposite effect, with large windows that manage to connect the user with the picturesque natural surroundings.

renee del gaudio

 

 

from an environmental perspective, high efficiency electric appliances and LED lighting keep energy consumption to a minimum. closed and open cell foam insulation, double and triple pane windows with low-e glass, and rolling barn door shutters keep the house cool in the summer and warm in the winter. heating is provided with a 96% efficiency boiler, radiant floor tubing set in a concrete slab, and a high efficiency wood burning stove. the cabin is pre-wired for a 3kw array of photovoltaic panels which will supply 100% of the cabin’s electricity.

renee del gaudio

 

 

set high on a rocky cliff at 10,000 feet elevation, the views are incredible and the architect does an amazing job of framing them confidently from within the home. the cabin is spacious and open, where a vernacular cabin could be criticized for being claustrophobic. one wonders what the original creators of the cabin would have done with glass if they had access to today’s technologies.

renee del gaudio

renee del gaudio

renee del gaudio

renee del gaudio

renee del gaudio

renee del gaudio

renee del gaudio

renée del gaudio rethinks the classic american cabin with this colorado retreat