situated in chongai, japan, the ‘pinctada house’ by egyptian architect ahmed itafy is a private residential proposal evidently influenced by fibonacci’s golden spiral. the design envisions a cantilevered solid white volume with a luxurious central courtyard, providing an intimate living space for a family of five.

pinctada house 11

all images courtesy of ahmed itafy

 

 

ahmed itafy has created ‘pinctada house’ as a windowless dwelling for a family who wants plenty of privacy from their neighbors. at the same time, the limited openings offer protection against sunlight, too. the 451 sqm house is made up based on an offset rectangular plan that wraps around the light-filled central courtyard, arranged on two levels. the introverted structure seems to reject the outside scenery, while creating a large impressive private outdoor space.

pinctada house 2

 

 

the luxurious, yet highly private, concealed project refers to the islamic architecture philosophy, which reflects the concept of social cohesion in the urban fabric – ‘the poor’s houses next to riches’ mansions’. the residence showcases a minimal, simple exterior, with a lavish interior, following the idea of ‘containing complexity inside simplicity’

pinctada house 1

 

 

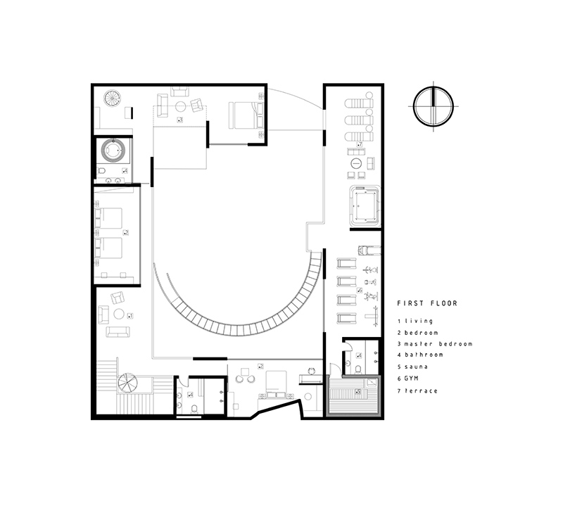
the ground floor includes a living and dining room, along with a guest bedroom and an office. in addition, a house cinema wraps around the vertical pool, with projected light rays piercing through the water. leading residents to the first floor, a circular steel staircase generates an observation point, inviting residents to look through the windcatcher situated above the swimming pool. the first level comprises all private rooms, along with the master bedroom which envelops the vertical pool. 

pinctada house 6

pinctada house 7

pinctada house 8

pinctada house 9

pinctada house 10

pinctada house 12

pinctada house 3
conceptual plan

pinctada house 5
ground floor

pinctada house 4
first floor

 

 

project info:

name: pinctada house
architect: ahmed itafy
location: chongai, japan

 

 

designboom has received this project from our ‘DIY submissions‘ feature, where we welcome our readers to submit their own work for publication. see more project submissions from our readers here.

 

edited by: myrto katsikopoulou | designboom