rever-&-drage-architects-cabin-straumsnes-tingvoll-norway-designboom-01

 

in norway, oslo-based architecture firm rever & drage has built ‘cabin straumsnes’, which paradoxically, was completed after its neighboring annex. this was due to the fact that the original dwelling, with the exception of the extension, was removed to make way for the new-build. therefore, the architects sought to design a new inclusive structure, which incorporated and integrated the annex building.

rever-&-drage-architects-cabin-straumsnes-tingvoll-norway-designboom-02
an elevated module contains a study that boasts sweeping ocean views
all images by tom auger

 

 

approaching the dwelling, it becomes apparent that rever & drage architects has skewed the ridge of the gabled roof towards the annex. this means that its roof appears as the southern side of a large gabled canopy. in addition, the large window of the top front module serves as both a centerpiece for the composition, and as a visual counterpoint to the glazed corner at ground level to the northwest. a curved pathway leads to an secretive entrance, which remains hidden from view.

rever-&-drage-architects-cabin-straumsnes-tingvoll-norway-designboom-02
a curved pathway leads to an secretive entrance, hidden from view

 

 

the architects describe the home as both a traditional shelter with a gabled roof, and at the same time, a modernist complex of units dominated by flat-roofed structures. facing west, an elevated module contains a small study that boasts sweeping ocean views. meanwhile, further modules — which lean towards the eastern wall of the main construction — are sheltered from the strong westerly winds. these serve as secluded bedrooms for individual family members.

rever-&-drage-architects-cabin-straumsnes-tingvoll-norway-designboom-02
secluded bedrooms are provided for individual family members

rever-&-drage-architects-cabin-straumsnes-tingvoll-norway-designboom-02
a fireplace is positioned at the heart of the communal living space

rever-&-drage-architects-cabin-straumsnes-tingvoll-norway-designboom-02
windows offer selective views of the surrounding landscape

rever-&-drage-architects-cabin-straumsnes-tingvoll-norway-designboom-02
the property offers views along the norwegian coastline

rever-&-drage-architects-cabin-straumsnes-tingvoll-norway-designboom-02
the roof of the annex appears as the southern side of a large gabled canopy

rever-&-drage-architects-cabin-straumsnes-tingvoll-norway-designboom-02
further modules are sheltered from the strong westerly winds

rever-&-drage-architects-cabin-straumsnes-tingvoll-norway-designboom-02
‘cabin straumsnes’ is located in årsund, norway

 

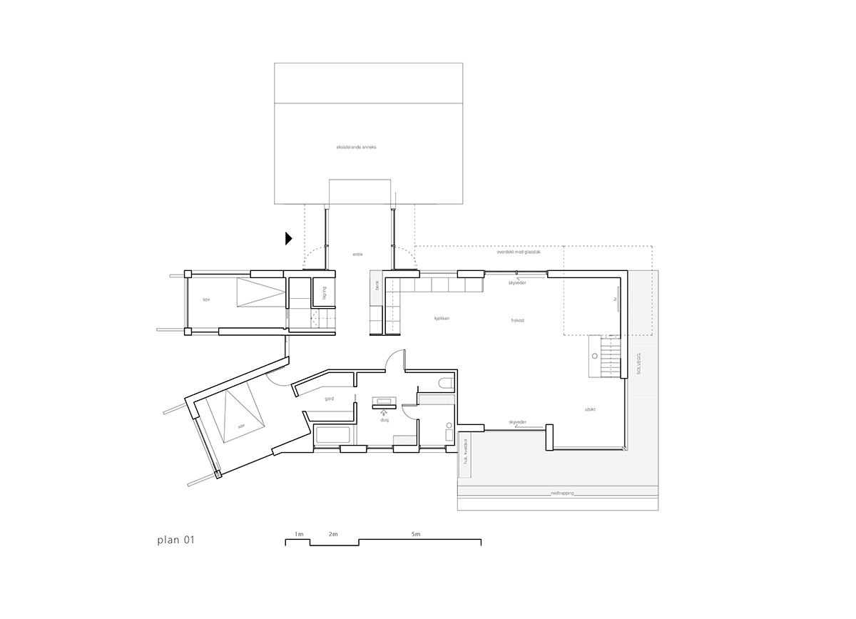
drawings

1/7
rever & drage architects cabin straumsnes tingvoll norway designboom
 
rever & drage architects cabin straumsnes tingvoll norway designboom
 
rever & drage architects cabin straumsnes tingvoll norway designboom
 
rever & drage architects cabin straumsnes tingvoll norway designboom
 
rever & drage architects cabin straumsnes tingvoll norway designboom
 
rever & drage architects cabin straumsnes tingvoll norway designboom
 
rever & drage architects cabin straumsnes tingvoll norway designboom
 

 

project info:

 

name: cabin straumsnes
architects: rever & drage architects
design team: tom auger, martin beverfjord, eirik lilledrange
complete: 2015
location: straumsnes, tingvoll, norway
area: 135 sqm
photography: tom auger

Save

Save

Save

Save

Save

Save

Save

Save

Save

Save

Save

Save

Save

Save

Save