ask any kid to draw a house, and chances are they’ll start with a rectangle and inevitably draw three lines on top — uncomplicated, but a realization that robert venturi would no doubt delight in. this notion of a house transcends culture and location, and manifests itself in two simple shapes, i.e. the vernacular home. this idea is was the starting point for architect kim seongyoul of rieuldorang atelier when designing the ‘manhwaricano’ home in korea.

an architectural vanishing act, the disappearance of the vernacular home
all images by joonhwan yoon

 

 

‘I started designing with the question of how architecture can enter the world of emotion,’ kim seongyoul describes. the architect wanted to discover beauty from ordinary things — like simple geometric shapes — and this is just what he and his team accomplished with this project. this design uses the shape of the ‘idea of a home’ to create a negative space in a complex and beautiful project; thus offering a poetic reading of the average inhabitance. 

an architectural vanishing act, the disappearance of the vernacular home
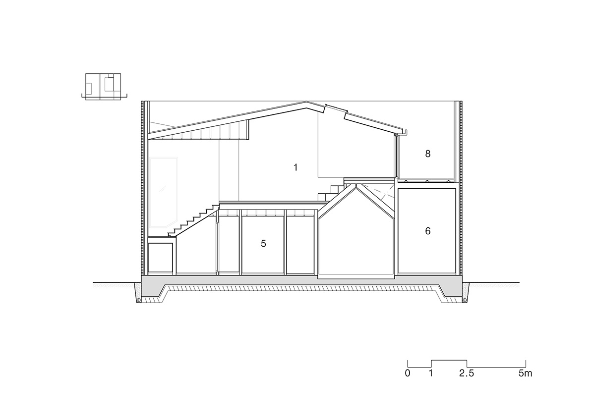
the gable shape creates a passageway through the building 

 

 

all that remains of this old vernacular notion is the footprint it once occupied and the ideas it left behind. the vacated space in the form of a gable becomes a sequence leading into the house. kim seongyoul asserts that history is a part of any project and that architecture, like art, always fits in this eternal timeline.

 rieuldorang atelier
light floods through the canopy overhead 

 rieuldorang atelier
the ‘manhwaricano’ home in korea

 rieuldorang atelier
the architect wanted to discover beauty from ordinary things, like simple geometric shapes

 rieuldorang atelier
the design uses the shape of the ‘idea of a home’ 

 rieuldorang atelier
a negative space in a complex and beautiful project is created

 rieuldorang atelier
a poetic reading of the average inhabitance is offered 

 rieuldorang atelier
kim seongyoul asserts that history is a part of any project

 rieuldorang atelier
architecture, like art, always fits in an eternal timeline

 rieuldorang atelier
the vacated space in the form of a gable becomes a sequence leading

 

 

1/8
yoon-joonhwan-manhwaricano-designboom-51
 
yoon-joonhwan-manhwaricano-designboom-52
 
yoon-joonhwan-manhwaricano-designboom-53
 
yoon-joonhwan-manhwaricano-designboom-54
 
yoon-joonhwan-manhwaricano-designboom-55
 
yoon-joonhwan-manhwaricano-designboom-56
 
yoon-joonhwan-manhwaricano-designboom-57
 
yoon-joonhwan-manhwaricano-designboom-58
 

 

project info: 

 

project name: manhwaricano
architecture firm: rieuldorang atelier
lead architects: kim seongyoul
project location: manhwa-ri, dudong-myeon, ulju-gun ulsan, south korea
completion year: 2017
gross built area (square meters or square foot): 144.25m²
photo credits: yoon, joonhwan
other participants: lee hansae