KEEP UP WITH OUR DAILY AND WEEKLY NEWSLETTERS
watch a new film capturing a portrait of the studio through photographs, drawings, and present day life inside barcelona's former cement factory.
designboom visits les caryatides in guyancourt to explore the iconic building in person and unveil its beauty and peculiarities.
the legendary architect and co-founder of archigram speaks with designboom at mugak/2025 on utopia, drawing, and the lasting impact of his visionary works.
connections: +330
a continuation of the existing rock formations, the hotel is articulated as a series of stepped horizontal planes, courtyards, and gardens.


exterior
southwest perspective
exterior approach
front facade
interior
‘bridge’ over the convent
‘bridge’
‘bridge’
above the cloister
exterior
convent: pre-construction
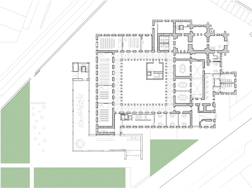
floor plan / level 0
floor plan / level 1
floor plan / terrace
floor plan / restaurant and cafe
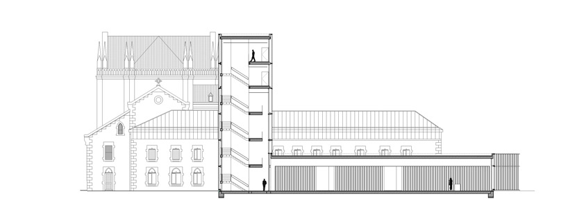
section
section
section
section
section
elevation
elevation
elevation
elevation