the desire of ruptura morlaca’s clients to live on a serene, silent, vast, spacious and full-of-trees location, where nature is able to show its greatness, has led the project team to identify a place in the sector of ricaurte in cuenca, ecuador. an almost intact site that in the mornings is stripped of a mist characteristic of the mountains of the area that floats on the sloping territory managing to guide the gaze to the top of the trees, mountains and clouds.

ruptura morlaca's concrete house floats weightlessly over serene landscape in ecuador
all images by ruptura morlaca

 

 

working with the natural slope of the site allows ecuadorian based practice ruptura morlaca to observe architecture as a landscape and buildings as their mountains. this generates an artificial territory that adapts to the topography, manipulating as a scenario a landscape within another to obtain a new geography that rises when moving between the treetops, building geography more than architecture.

ruptura morlaca's concrete house floats weightlessly over serene landscape in ecuador
a landscape within another to obtain a new geography that rises when moving between the treetops

 

 

this artificial geography allows the social areas to approach the trees to enjoy the visual, wind and shade of the morning. these are supported in the private areas of the house, concentrating on a mass to avoid radiation from direct sunlight in the afternoon and conserve heat for the cold of the night. all these spaces on platforms are unified to a promenade that follows the silhouette of the topography in a place of shadows, exposing itself to the height of the trees and disconnecting from a domestic scale; ending its journey in a plain that brings you closer to touching the treetops in a space that takes you away from the daily, allowing you to contemplate the natural cycle and find yourself as you move through the platforms and gardens, translating into stones and plants.

ruptura morlaca's concrete house floats weightlessly over serene landscape in ecuador
cut out to generate a colorful threshold like the skirts of the ‘cholas cuencanas’

 

 

in the way of appropriating the territory by ‘not touching the ground’ and not affecting the scale of the place, ruptura morlaca wants the ‘gravitational indifference’ project to appear at the minimum height of the trees, eliminating all verticality so as not to cover the horizon. in the same way, the private spaces are closed to avoid the incidence of the sun and the client can obtain the peculiarity of observing and not being seen, of granting privacy to hide the person who inhabits, allowing him a life that is profoundly free regardless of all moral and social vigilance.

ruptura morlaca's concrete house floats weightlessly over serene landscape in ecuador
shadows that get lost in the stone

 

 

what should be the first impression of the subject with the matter? upon arriving at the site, invaded by a haze that for centuries has been floating in the imaginary of dreams, where the only private space is the mind, it exposes thought to endow the concentrated mass of security and energy efficiency in one piece.

ruptura morlaca's concrete house floats weightlessly over serene landscape in ecuador
the private spaces are closed to avoid the incidence of the sun

 

 

suspended weightless like a cloud over that serene landscape and cut out to generate a colorful threshold like the skirts of the ‘cholas cuencanas’. it incites you to reach beyond that concrete natural scenario in a material capable of resisting and adapting to the passage of time, endowing it with timelessness since it was always floating in that place within the thought and desire that it will allow levitating matter, possessing even of mass, but no longer of terrestrial gravity elevating you to the world of dreams. coming to create an image no longer of lightness but of levitated matter, of ‘gravitational indifference’.

ruptura morlaca's concrete house floats weightlessly over serene landscape in ecuador
ruptura morlaca to observe architecture as a landscape and buildings as their mountains

ruptura morlaca's concrete house floats weightlessly over serene landscape in ecuador
coming to create an image no longer of lightness but of levitated matter

ruptura morlaca's concrete house floats weightlessly over serene landscape in ecuador
world of shadows and reflections

ruptura morlaca's concrete house floats weightlessly over serene landscape in ecuador
the kitchen has open views to the nearby trees

ruptura morlaca's concrete house floats weightlessly over serene landscape in ecuador
ruptura morlaca wants the project to appear at the minimum height of the trees

ruptura morlaca's concrete house floats weightlessly over serene landscape in ecuador
structural axonometry

ruptura morlaca's concrete house floats weightlessly over serene landscape in ecuador
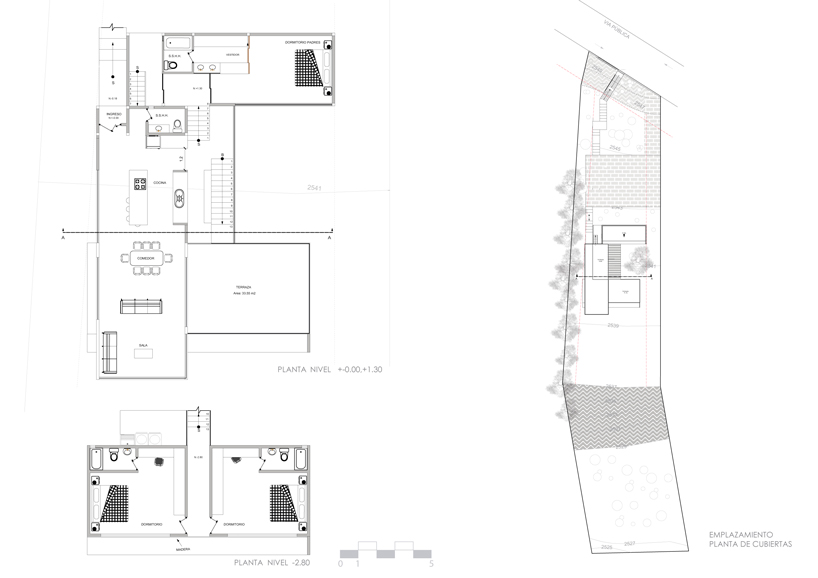
floor plans

 

 

designboom has received this project from our ‘DIY submissions‘ feature, where we welcome our readers to submit their own work for publication. see more project submissions from our readers here.

 

edited by: apostolos costarangos | designboom