
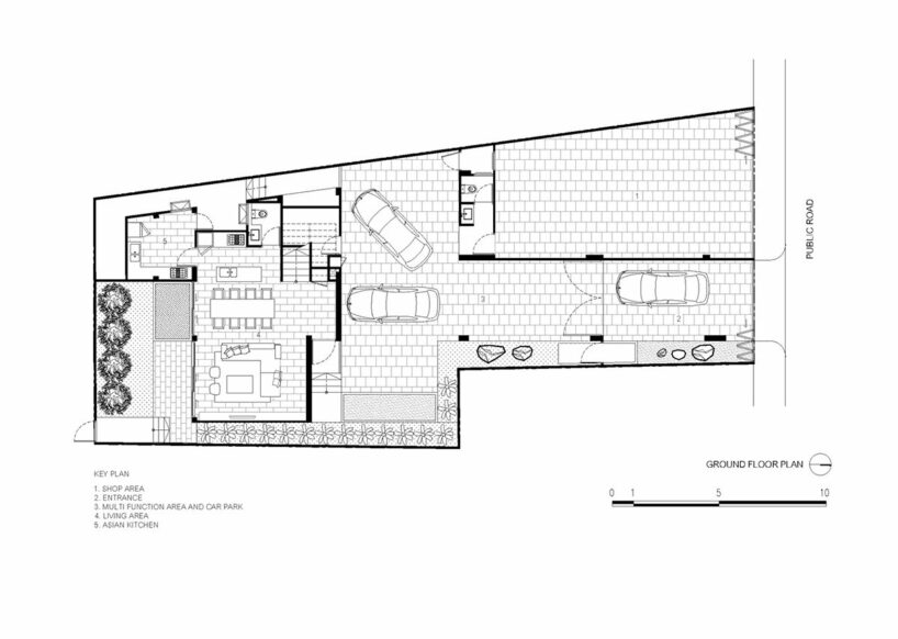
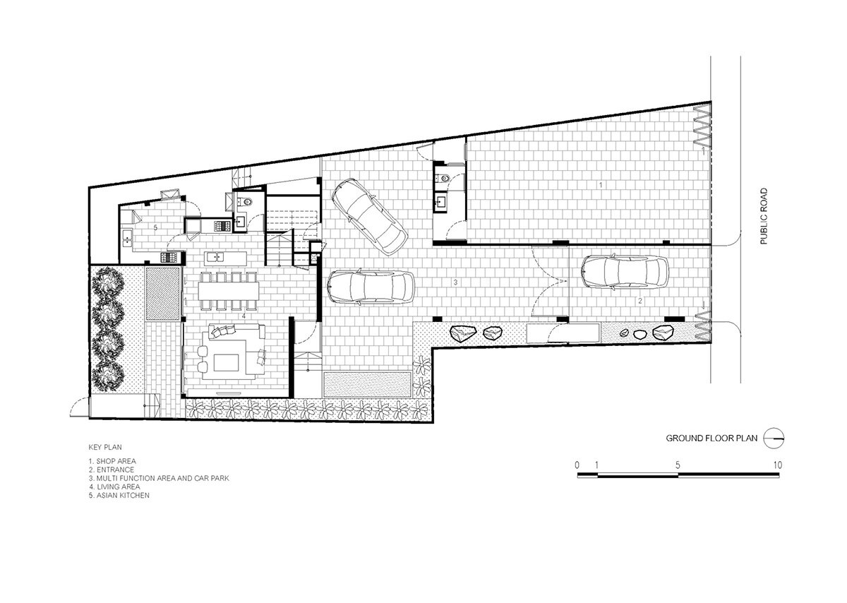
the porch serves multiple purposes, from a loading bay for gas deliveries to a community boxing ring and event space

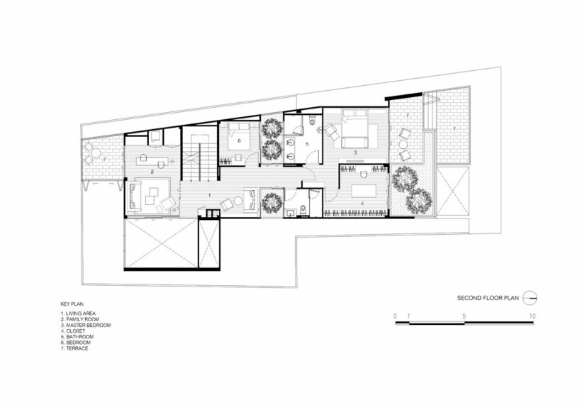
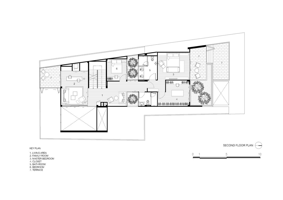
the master bedroom offers green views, terrace access, and custom aluminum panels for privacy and noise reduction
KEEP UP WITH OUR DAILY AND WEEKLY NEWSLETTERS
the founders of amateur architecture studio have been appointed curators of the 20th international architecture exhibition, opening may 8th, 2027.
connections: 12
the project sits like a ring placed over the terrain, with its funnel-like roof forming a shaded perimeter walkway and an introverted core.
'this building says to the world, harlem matters. black art matters. black institutions matter,' raymond j. mcguire, chairman of the board of trustees, said during the museum's preview opening.
snøhetta wins an international competition to design the qiantang bay art museum for the riverfront of hangzhou.














