‘sepid’ designed by the shar group is an organic-shaped concrete-clad commercial and residential building in qazvin, iran. the concept of the project started with three rectangular volumes stitched together, that were later clad in a secondary curved envelope with multi-sized extruded window frames. the architects avoided using 90-degree angles both inside and outside the structure, giving a futuristic view.

curved angles, extruded windows and square dots characterize futuristic building in iran
front facade view

all images courtesy of the shar group

 

 

in order to feel the integrity of the façade, the shar group wrapped the entire building in a bent shell. in the next step, a second cover was added to emphasize the corners and provide a continuation to the façade. by setting the window outlines and tiny scattered square openings — looking like pixels from far away — on the building shell, the architects sought to add a playful touch to intriguing passers-by interest.

curved angles, extruded windows and square dots characterize futuristic building in iran
detail of the extruded window frames

curved angles, extruded windows and square dots characterize futuristic building in iran
scattered square dots

curved angles, extruded window frames + square dots characterize futuristic building in iran
photorealistic view

curved angles, extruded window frames + square dots characterize futuristic building in iran
before the intervention

sepid 1
illustration

sepid 6
concept diagrams

sepid 7
second shell

 

 

1/7
north elevation
north elevation
section B-B
section B-B
section A-A
section A-A
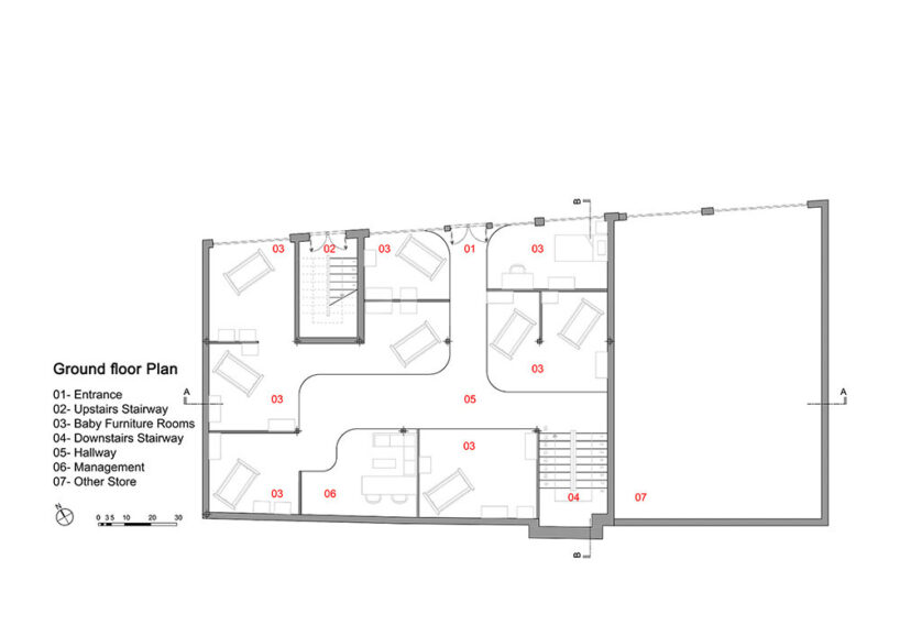
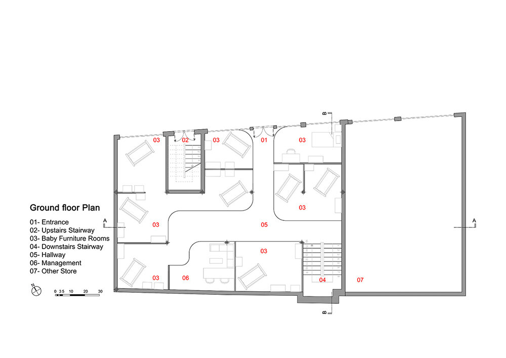
ground floor plan
ground floor plan
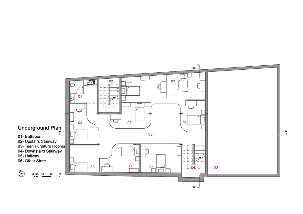
underground plan
underground plan
east elevation
east elevation
concept
concept

project info:

 

name: sepid
designer: the shar group

area: 900 sqm (9,687.5sqft)
location: naderi blvd, qazvin, iran

 

 

designboom has received this project from our ‘DIY submissionsfeature, where we welcome our readers to submit their own work for publication. see more project submissions from our readers here.

 

edited by: christina petridou | designboom