fuse-atelier’s house in tsutsumino is composed of concrete volumes
photography by shigeru fuse
all images courtesy of fuse-atelier

 

 

 

designed by shigeru fuse of fuse-atelier, this two-storey home in the japanese city of noda provides sweeping views of the surrounding natural landscape. completed for a young couple in their thirties, ‘house in tsutsumino’ is located on an residential block adjacent to a large area of parkland.

 

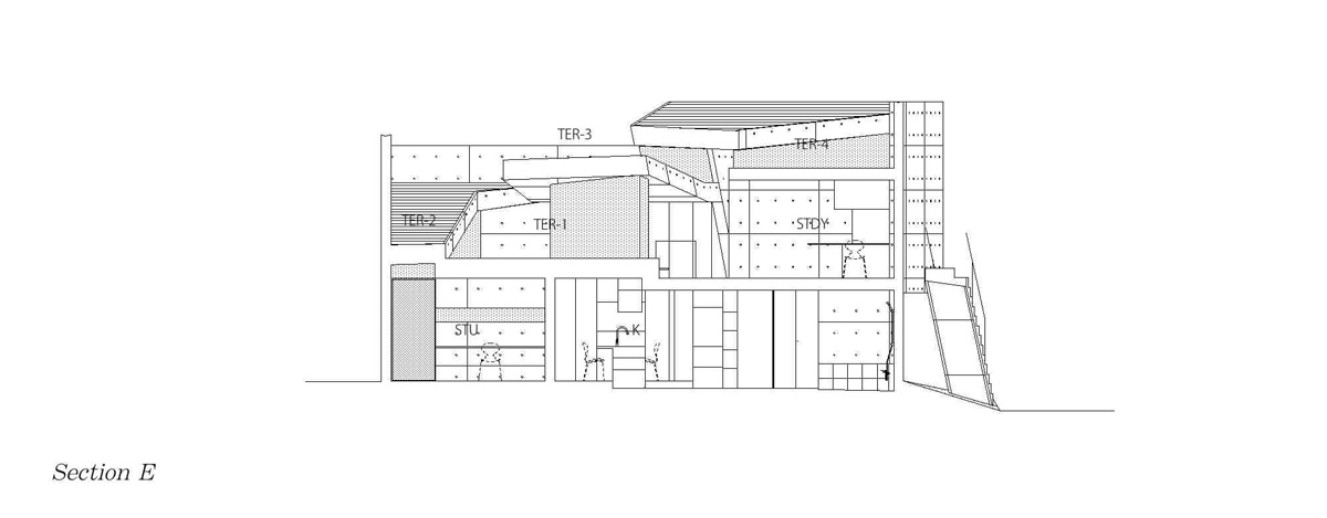
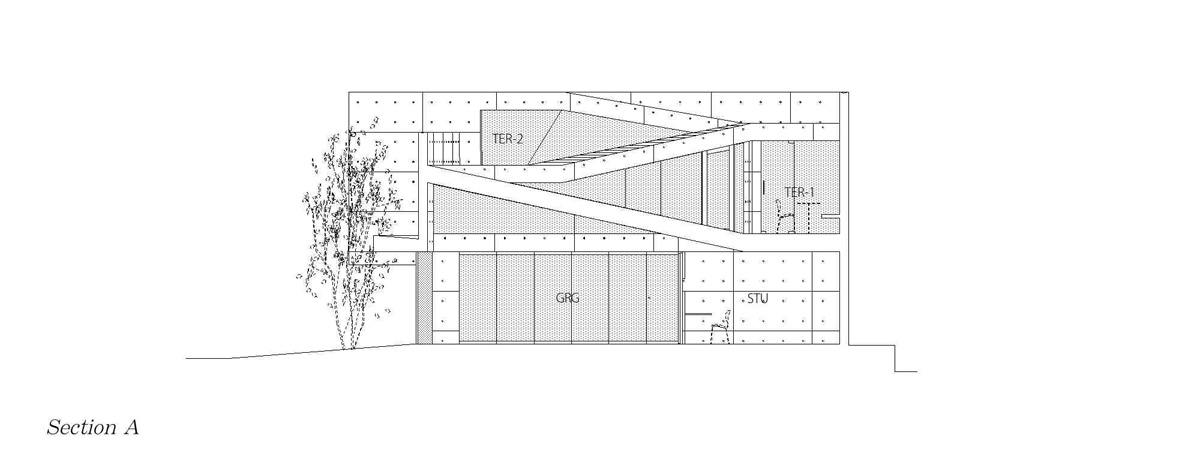
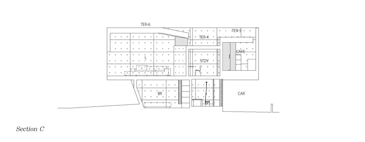
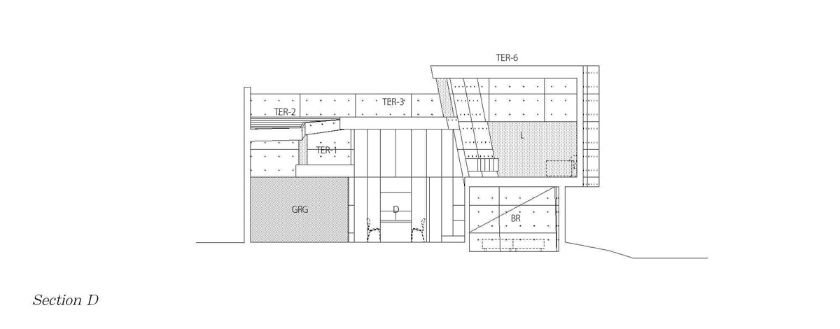
the building’s angular concrete form contrasts the more orthodox nature of neighboring structures, with a large glazed aperture presented to the passing street. internally, residential areas exist on different levels with the kitchen, dining and living accommodation connected via a continuous circulation route. the winding pathway proceeds upwards, before becoming a roof terrace elevated at a total height of six meters.

shigeru fuse atelier house in tsutsumino noda japan designboom
the building is located on an residential block adjacent to a large area of parkland

shigeru fuse atelier house in tsutsumino noda japan designboom
stairway leading to the home’s second storey

shigeru fuse atelier house in tsutsumino noda japan designboom
the kitchen, dining and living accommodation is connected via a continuous circulation route

shigeru fuse atelier house in tsutsumino noda japan designboom
exposed concrete and glass are used throughout the design

shigeru fuse atelier house in tsutsumino noda japan designboom
the property’s double-height kitchen

shigeru fuse atelier house in tsutsumino noda japan designboom
the winding pathway proceeds upwards, before becoming a roof terrace

shigeru fuse atelier house in tsutsumino noda japan designboom
the open-air patio is elevated to a height of six meters

shigeru fuse atelier house in tsutsumino noda japan designboom
sweeping views of the surrounding natural landscape

shigeru fuse atelier house in tsutsumino noda japan designboom
the building contrasts the more orthodox nature of the neighboring structures

 

1/27
shigeru fuse atelier house in tsutsumino noda japan designboom
 
shigeru fuse atelier house in tsutsumino noda japan designboom
 
shigeru fuse atelier house in tsutsumino noda japan designboom
 
shigeru fuse atelier house in tsutsumino noda japan designboom
 
shigeru fuse atelier house in tsutsumino noda japan designboom
 
shigeru fuse atelier house in tsutsumino noda japan designboom
 
shigeru fuse atelier house in tsutsumino noda japan designboom
 
shigeru fuse atelier house in tsutsumino noda japan designboom
 
shigeru fuse atelier house in tsutsumino noda japan designboom
 
shigeru fuse atelier house in tsutsumino noda japan designboom
 
shigeru fuse atelier house in tsutsumino noda japan designboom
 
shigeru fuse atelier house in tsutsumino noda japan designboom
 
shigeru fuse atelier house in tsutsumino noda japan designboom
 
shigeru fuse atelier house in tsutsumino noda japan designboom
 
shigeru fuse atelier house in tsutsumino noda japan designboom
 
shigeru fuse atelier house in tsutsumino noda japan designboom
 
shigeru fuse atelier house in tsutsumino noda japan designboom
 
shigeru fuse atelier house in tsutsumino noda japan designboom
 
shigeru fuse atelier house in tsutsumino noda japan designboom
 
shigeru fuse atelier house in tsutsumino noda japan designboom
 
shigeru fuse atelier house in tsutsumino noda japan designboom
 
shigeru fuse atelier house in tsutsumino noda japan designboom
 
shigeru fuse atelier house in tsutsumino noda japan designboom
 
shigeru fuse atelier house in tsutsumino noda japan designboom
 
shigeru fuse atelier house in tsutsumino noda japan designboom
 
shigeru fuse atelier house in tsutsumino noda japan designboom
 
shigeru fuse atelier house in tsutsumino noda japan designboom
 

project info:

 

location: noda, chiba prefecture, japan

type: residential 

architects: shigeru fuse / fuse-atelier

site area: 198.47 sqm
building area: 109.75 sqm

gross internal floor area: 135.69 sqm

structure: reinforced concrete
scale: 2 storey

 

architect: shigeru fuse

design team: fuse-atelier + musashino art university / fuse-studio

structural engineers: ysutaka konishi
photography: shigeru fuse

main contractor: nagano koumuten