KEEP UP WITH OUR DAILY AND WEEKLY NEWSLETTERS
happening now! yusuke kawai explains how his design for pedrali’s kawara lighting collection fuses sacred japanese architecture with industrial precision.
'this building says to the world, harlem matters. black art matters. black institutions matter,' raymond j. mcguire, chairman of the board of trustees, said during the museum's preview opening.
snøhetta wins an international competition to design the qiantang bay art museum for the riverfront of hangzhou.
the project will make its debut during the 2026 winter olympics in milan, and will then be moved to its permanent location in the alps to serve as a safe resting point for climbers and trekkers.
a system of platforms endlessly reshapes the exhibition spaces within the restored shell of the former grands magasins du louvre.

captionimage © stirling elmendorf
captionimage © stirling elmendorf
glowing from the interior lightimage © stirling elmendorf
door with chain push barimage © stirling elmendorf
view to the outside through perforated screenimage © stirling elmendorf
entrance vestibuleimage © stirling elmendorf
central stairsimage © stirling elmendorf
image © stirling elmendorf
kitchenimage © stirling elmendorf
all wood interior contrasts the cold steel exteriorimage © stirling elmendorf
stairs service all functions of the houseimage © stirling elmendorf
skylights illuminate the darker ends of the homeimage © stirling elmendorf
view from the top of the stair wellimage © stirling elmendorf
image © stirling elmendorf
site plan
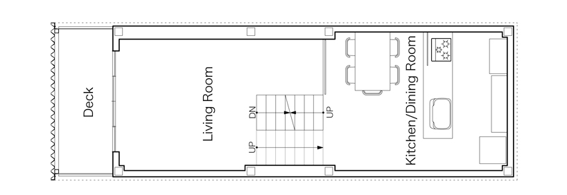
floor plan / level 0
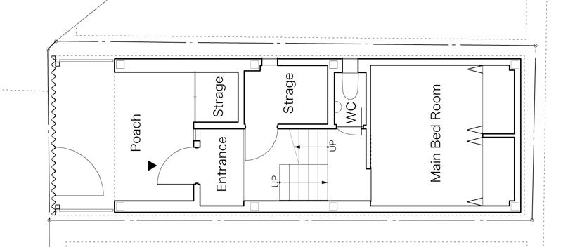
floor plan / level 1
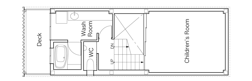
floor plan / level 2
section