snøhetta finalizes ryerson university’s student learning centre in toronto
image © doublespace photography

 

 

 

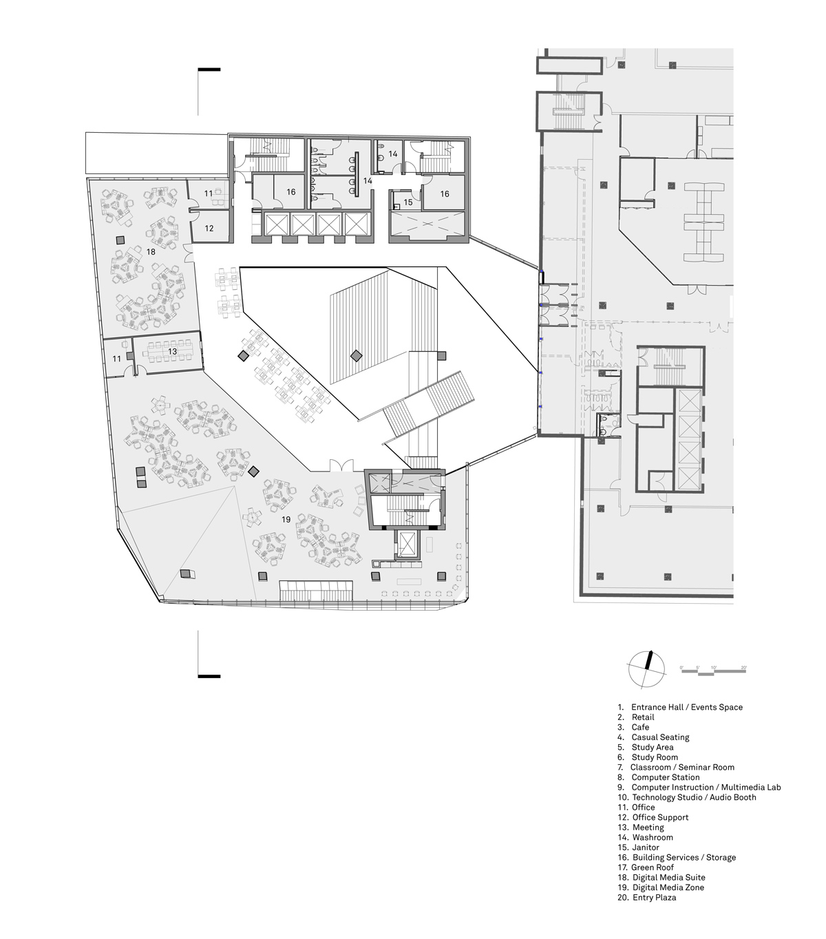
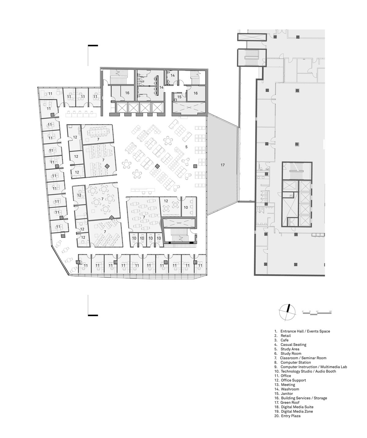
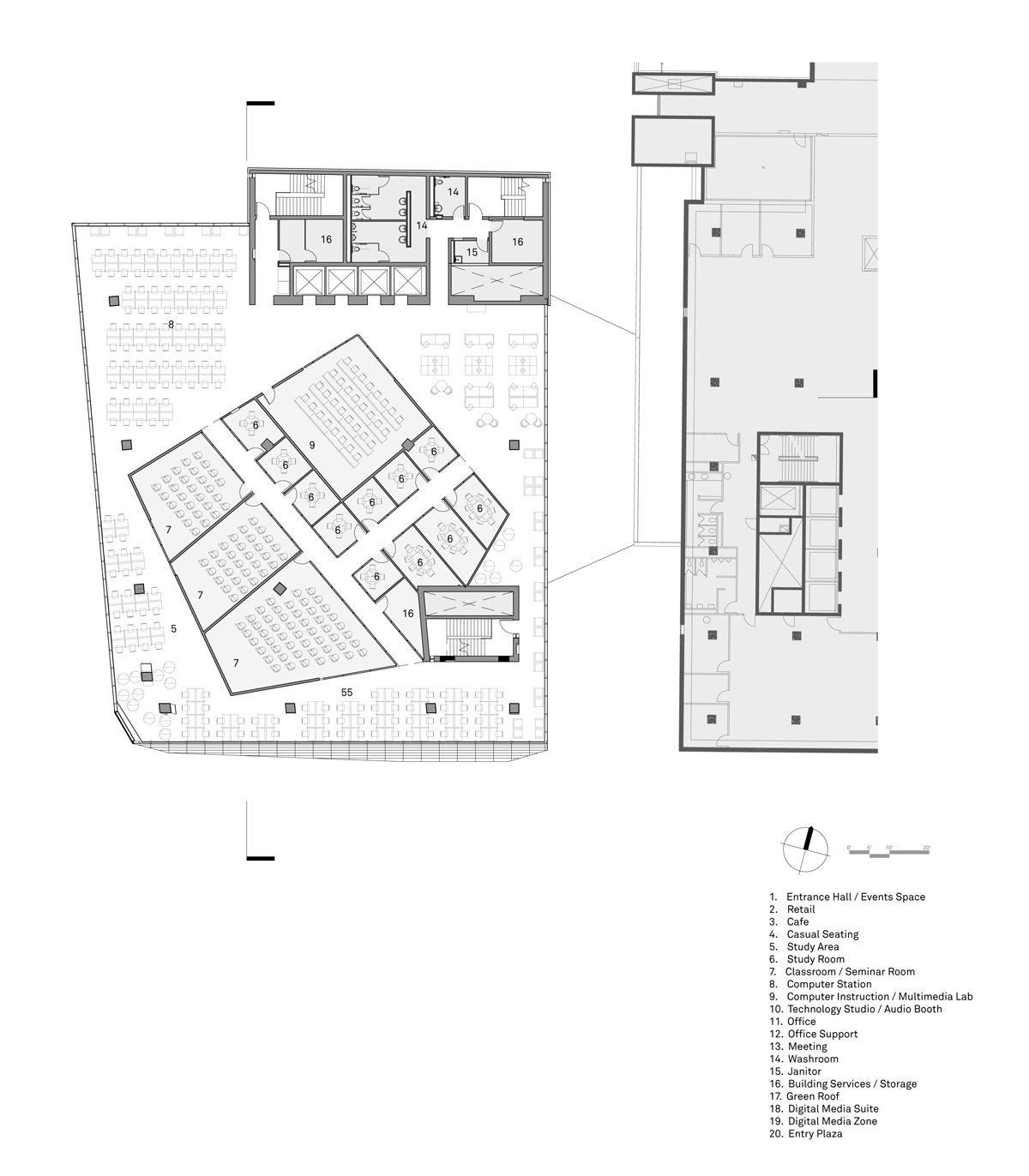
in toronto, international firm snøhetta has completed ryerson university’s student learning centre (SLC) with a design that references the historical gathering spaces of ancient greece. conceived as ‘a library without books’, the design develops natural conditions for groups of people to interact, while offering areas for controlled and introspective study. the SLC offers students eight individually designed floors that include space to meet, study, and exchange ideas – encouraging students to interact with their physical environment.

snohetta ryerson university student learning center toronto canada designboom
the flow of students in and out of the building remains uninterrupted by surrounding commercial activity
image © marc mitanis

 

 

 

well-known for its engineering and business programs, ryerson university is an urban commuter campus with 38,000 students. previously, the school did not have a recognizable presence within the city, with most of the academic buildings housed within the existing urban fabric, or set back from major streets. the new complex provides a much-needed space for students to study and remain on campus between classes, creating a distinguishable identity for the university.

snohetta ryerson university student learning center toronto canada designboom
the design features a south facing raised platform that opens the street corner
image © doublespace photography

 

 

 

the design begins with a south-facing raised platform that opens the street corner for a broad range of pedestrian activity — from larger gatherings to individual seating areas. part plaza, part porch, this elevated space creates a welcoming yet protected urban edge shared by students and the general public. situated on the yonge street retail corridor, the building directs the flow of students over and up the entry stairs, ensuring that the flow of students in and out of the building remains uninterrupted by commercial activity.

snohetta ryerson university student learning center toronto canada designboom
a large canopy is clad in iridescent, hand-folded metal panels
image © lorne bridgman

 

 

 

the façades of the building are composed of a digitally-printed fritted glass that envelops the rugged armature and pared-down aesthetic of the exposed concrete structure,’ explains snøhetta. ‘while the glass is understood to be transparent and light, it also evokes a juxtaposing sense of solidity and mass. the varying façade pattern controls heat gain into the building and frames views of the city grid and nearby buildings from the interior, acting as a traditional framed window without actual frame constructions.’

snohetta ryerson university student learning center toronto canada designboom
a reception area is defined by a spacious atrium that houses informal seating areas
image © lorne bridgman

 

 

 

a visually striking campus gateway is shaped by a large canopy clad in iridescent, hand-folded metal panels stretching from the exterior façade into the lobby. this reception area is defined by a spacious atrium that houses informal seating areas, a café, and a welcome desk for visitors and prospective students. it also acts as a multi-purpose forum with integrated seating and performance technology for events ranging from fashion shows to music performances. a broad stairway leads from the lobby to a new bridge connecting the SLC to the existing university library. hovering above the atrium is ryerson’s launch zone, a digital media lab and business incubator for emerging tech start-ups.

snohetta ryerson university student learning center toronto canada designboom
‘the beach’ is an open and informal study area that slopes down through a series of ramps and terraces
image © lorne bridgman

 

 

 

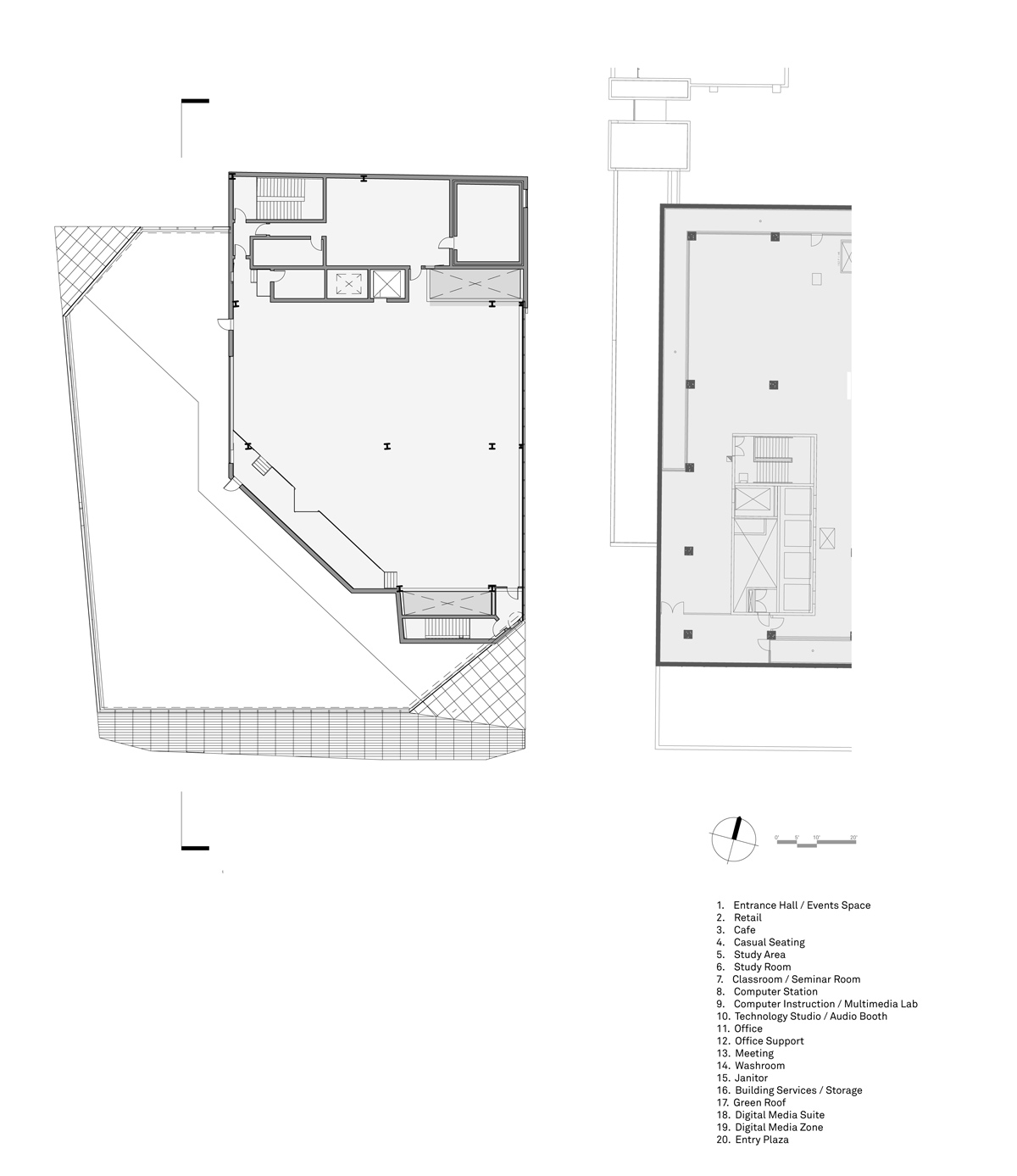
each storey of the building offers a different kind of space, each with a distinct atmosphere influenced by themes found in nature. the sixth floor, known as ‘the beach’, is an open and informal study area that slopes down through a series of ramps and terraces, encouraging students to sit on the floor and move the casual furniture.

snohetta ryerson university student learning center toronto canada designboom
the configuration encourages students to sit on the floor and move the casual furniture
image © lorne bridgman

 

 

 

‘the sky’ occupies the top floor of the building with an uplifting ceiling that offers broad overlooks and access to natural light. ‘the forest’ and ‘the garden’ also provide differing learning programs with student services, quiet study areas, and classrooms.

 

construction work got underway in may 2012, with an official opening held earlier in 2015. see designboom’s previous coverage of the project here.

snohetta ryerson university student learning center toronto canada designboom
‘the sky’ is an open study area with broad overlooks and access to natural light
image © lorne bridgman

snohetta ryerson university student learning center toronto canada designboom
the area occupies the building’s uppermost level
image © lorne bridgman

snohetta ryerson university student learning center toronto canada designboom
façade detail showing the hand-folded components
image © snøhetta

snohetta ryerson university student learning center toronto canada designboom
folded metal panels stretch from the exterior façade into the lobby
image © snøhetta

 

1/20
snohetta ryerson university student learning center toronto canada
 
snohetta ryerson university student learning center toronto canada
 
snohetta ryerson university student learning center toronto canada
 
snohetta ryerson university student learning center toronto canada
 
snohetta ryerson university student learning center toronto canada
 
snohetta ryerson university student learning center toronto canada
 
snohetta ryerson university student learning center toronto canada
 
snohetta ryerson university student learning center toronto canada
 
snohetta ryerson university student learning center toronto canada
 
snohetta ryerson university student learning center toronto canada
 
snohetta ryerson university student learning center toronto canada
 
snohetta ryerson university student learning center toronto canada
 
snohetta ryerson university student learning center toronto canada
 
snohetta ryerson university student learning center toronto canada
 
snohetta ryerson university student learning center toronto canada
 
snohetta ryerson university student learning center toronto canada
 
snohetta ryerson university student learning center toronto canada
 
snohetta ryerson university student learning center toronto canada
 
snohetta ryerson university student learning center toronto canada
 
snohetta ryerson university student learning center toronto canada
 

 

project info:

 

name: ryerson university student learning centre
design architect & landscape architect: snøhetta
executive architect: zeidler partnership architects
client: ryerson university
location: toronto, canada
typology: university student centre & library expansion
size: 14,200 sqm / 152,848 sqf

 

 

 

UPDATE:
founding partner of snøhetta, k
jetil trædal thorsen, was a speaker at the 2015 business of design week conference in hong kong.

BODW-2015
since 2002, the hong kong design centre has been organizing the business of design week (BODW) – asia’s leading annual event on design innovation and brands. BODW brings together some of the world’s most outstanding design masters and influential business figures to discuss and share their views on creative thinking and design management from their varied cultural and social perspectives, providing a valuable platform for individuals to network, exchange ideas and explore potential working partnerships. the 2015 edition of BODW introduces the partner city initiative, inviting barcelona as the inaugural affiliate. this sees a number of barcelona creative talents — from the fields of design, architecture, urbanism, gastronomy and sport — take to the stage to discuss the cultural capital’s community-driven design approach and rich artistic heritage.