located in the gunma prefecture of central japan, architects from SNARK and OUVI have constructed a two-story wooden home equipped with a solarium centralized around cultivating and viewing flora.

 

as requested by the owner, the home beautifully bridges residential living with a greenhouse component, allowing sun to fill the solarium area. additionally, the two sections of the home are structurally independent and provide flexibility for future expansions, reductions or renovation of the solar room parts.

solarium SNARK OUVI
the solarium section of the home is distinctly separated from the residential area
all images by shinzawa ippei

 

 

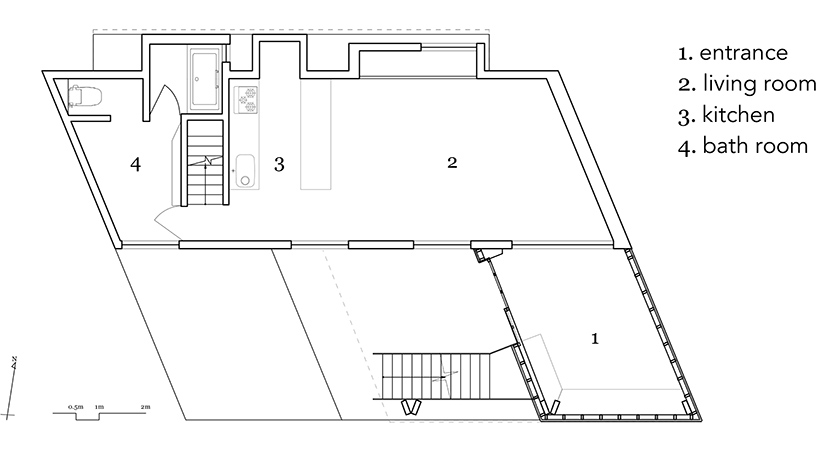
made to fit four people, SNARK and OUVI have based the residential area off of a grid that traces the shape of a parallelogram. the timber structure encourages a natural earth theme, connecting the sun and pthe lants with the surrounding suburban landscape of maebashi-shi.

solarium SNARK OUVI
the solarium has two levels built for cultivating flora and allowing sunlight to effortlessly transcendsolarium SNARK OUVI
this gif illustrates the natural free flowing aspect to this home, allowing air and sun to entersolarium SNARK OUVI
the sections in the home are separated by wood and glass, providing effortless transitionssolarium SNARK OUVI
the interior of the home continues the wood theme of the buildsolarium SNARK OUVI
the second level to the home pictured heresolarium SNARK OUVI
the second level in the solarium has a viewing area for owners to enjoy the sun and surroundingssolarium SNARK OUVI
view from inside the second level of the solariumin central japan, a transparent solarium home designed for cultivating flora - 1
the home is centralized around the hobby of the owner: florasolarium SNARK OUVI
at night, the lights inside of the home illuminate the home via the glass solarium solarium SNARK OUVI
this concept illustrates how the home provides access to witness the beautiful japanese landscape

 

 

1/6
nakauchi_drawings
 
nakauchi_drawings
 
nakauchi_drawings
 
nakauchi_drawings
 
nakauchi_drawings
 
nakauchi_drawings
 

project info:

 

location: maebashi, gunma, japan
site area: 370.05 sqm
built area: 65.05 sqm
floor area: 102.78 sqm
number of floors: 2
structure: wood
completed: march, 2018
architect: SNARK inc. (yu yamada) + ouvi (shin yokoo, kakeru tsuruta)
structural engineer: OUVI (shin yokoo, kakeru tsuruta)
general constructors: omnibus inc.