solis colomer’s casa chinkara is a harmonious blend of terrain, rock, + man
all images courtesy of solis colomer arquitectos

 

 

 

located in a privileged area surrounded by forests, but still close to guatemala city, ‘casa chinkara’ by solis colomer aquitectos presents itself as a dual residence exploring the contrast between natural and man made, primitive and contemporary. the project was imagined as a rock embedded in the landscape, an ethereal element that follows the order of the contour lines of the terrain. inside, it houses an art gallery, an intimate space for contemplation and a container of experiences materialized in the various works that conform it. this rigid volume has been sculpted in such a way that it allows for sun to come in through a skylight and for the different functions to flow directly out into the surroundings.

solis colomer casa chinkara guatemala
view of the art gallery

 

 

 

the stone massing acts as the heart of the building, where the rooms adhere, penetrate, or are superimposed around it. each one is contained inside various white enclosures wrapped in ACM, an artificial material, that as it is counterpoised to the rock, symbolizes the intervention of humans in the context. furthering this analogy, large glass panels with bright red mullions are embedded into the façade, denoting the intention of framing the landscape.

solis colomer casa chinkara guatemala
the front façade with its red frames

solis colomer casa chinkara guatemala
looking through circular voids in an exterior wall

 

 

 

from the outside the house reads as a group of window displays that expose the interior that compose it as a series of day to day experiences. correspondingly from the inside, all of the activities are adorned by a natural backdrop conformed by different species of trees, animals, and acoustics.

solis colomer casa chinkara guatemala
interior of the living room during the day

solis colomer casa chinkara guatemala
the lounge at night

solis colomer casa chinkara guatemala
a tree growing from the floor plate

 

 

 

even though the dwelling could be read as a massive composition of pieces, individual zones within maintain a residential scale. the warmth of the wooden floors, the unpolished stone, the vertical dimensions and the ornamentation reinforce the idea of a comfortable lifestyle, constantly inviting the occupants to enjoy a sense of contemplation and intimacy.

solis colomer casa chinkara guatemala
looking down the driveway

solis colomer casa chinkara guatemala
the work is a blend of terrain, rock, and man

solis colomer casa chinkara guatemala
the structure is backlit at night

solis colomer casa chinkara guatemala
axonometric diagrams

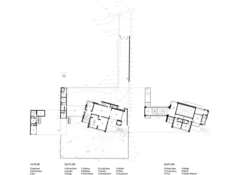
solis colomer casa chinkara guatemala
plans

 

 

designboom has received this project from our ‘DIY submissions‘ feature, where we welcome our readers to submit their own work for publication. see more project submissions from our readers here.