sono architects envelops slovenian bookstore with geometric timber shelving
photography by žiga lovšin

 

 

 

interpreting the architectural aspects of its context in trieste, italy, sono architects have crafted the slovenian book center with a distinctive, continuous shelving system. on the exterior, the bookstore inhabits an early 20th century palace building, and despite its historical setting, the architectural approach of the interior was to upgrade the existing scheme with contemporary additions, in order to create a ‘scenery’.

SoNo-arhitekti-slovenian-book-center-trieste-italy-designboom-02
crafted mainly using timber, its gives the otherwise concrete space warmth

 

 

 

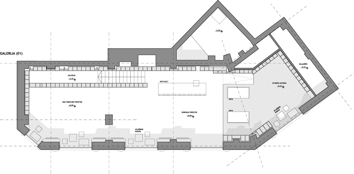
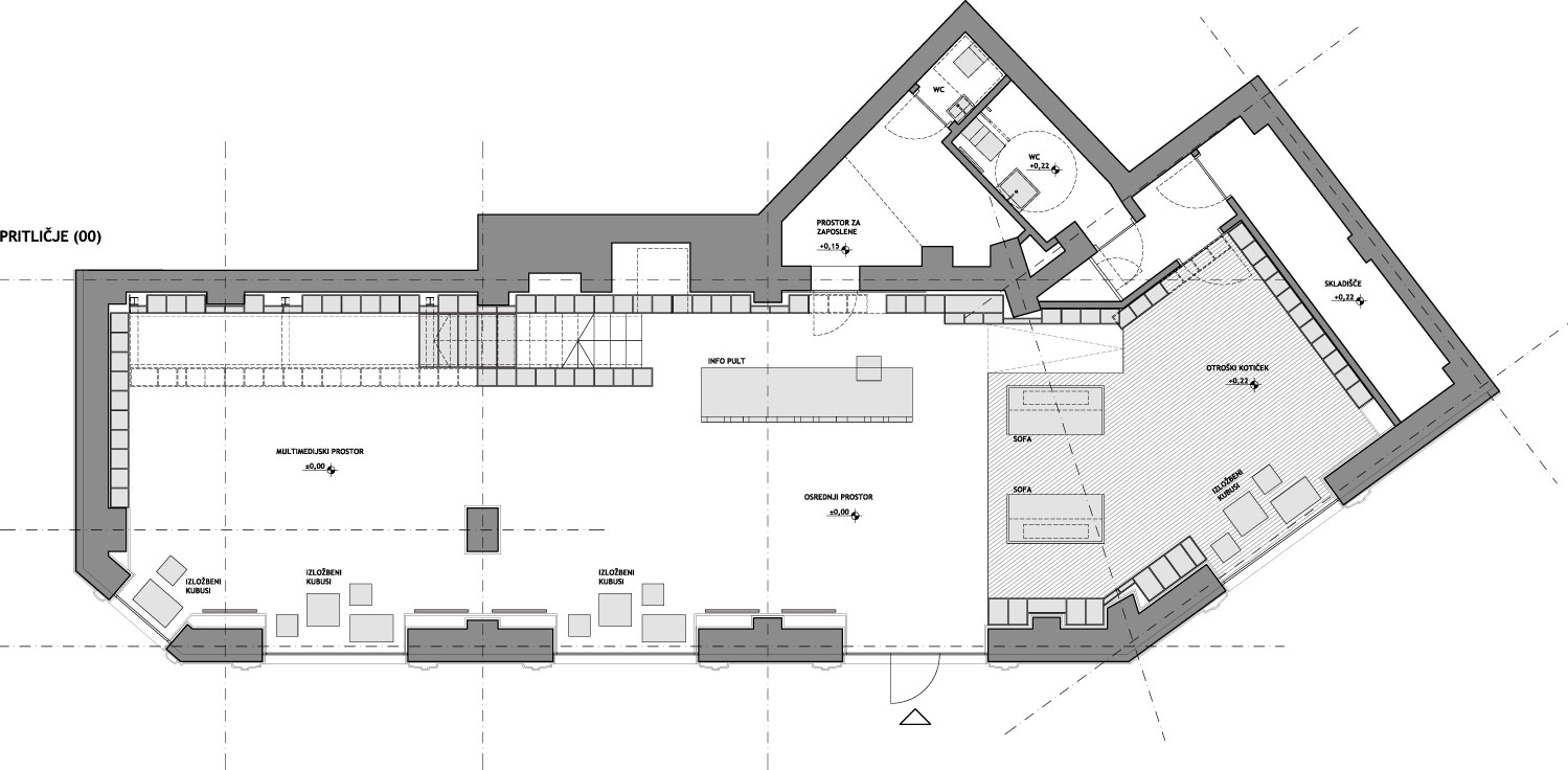
derived from researching the surrounding context, the architects planned the geometrical, grid pattern of the shelving through de-constructing the façade of architect fabiani’s national hall nearby. serving as a functional element with staircases leading up to the highest points, the shelving can be seen through the large, glazed windows. while creating a recognizable identity to the public, the store also promotes slovenian culture through its warm and inviting interiors.

SoNo-arhitekti-slovenian-book-center-trieste-italy-designboom-02
the grid pattern is a deconstruction of the façade of architect fabiani’s national hall

 

 

 

sono architects comment: ‘the interior is warm, inviting visitors to enter and visit it again and again. the book center is not only a bookshop, but a place for organizing social and cultural events for all type of visitors –  it thinks of its  young generation of visitors who like browsing the web for news and culture and who enjoy e-books.’

SoNo-arhitekti-slovenian-book-center-trieste-italy-designboom-02
this broken down decorative element has enabled a diverse spaces for book storage

SoNo-arhitekti-slovenian-book-center-trieste-italy-designboom-02
staircases lead up to the higher points of the bookstore

SoNo-arhitekti-slovenian-book-center-trieste-italy-designboom-02
the store is adaptable for workshops and readings

SoNo-arhitekti-slovenian-book-center-trieste-italy-designboom-02
the bookstore hopes to promote slovenian culture to its italian context

SoNo-arhitekti-slovenian-book-center-trieste-italy-designboom-02
the shelving can be seen through the large glazing of the storefront

SoNo-arhitekti-slovenian-book-center-trieste-italy-designboom-02
it is set inside an ex-palace building

SoNo-arhitekti-slovenian-book-center-trieste-italy-designboom-02
concept of the grid pattern

 

 

1/4
W:\01 aktualno delo\01 projekti\152-14-TRZASKO KNJIZNO SREDISCE\152-14-TRZASKO KNJIZNO SREDISCE (04 pzi)\02 nacrti\152-14-TRZAS
 
W:\01 aktualno delo\01 projekti\152-14-TRZASKO KNJIZNO SREDISCE\152-14-TRZASKO KNJIZNO SREDISCE (04 pzi)\02 nacrti\152-14-TRZAS
 
W:\03 promocija\44 INTERIER LETA\tlorisi Model (1)
 
W:\03 promocija\44 INTERIER LETA\VMES\tlorisi Model (1)
 

 

 

architecture practice: sono arhitekti
location: trieste, italy
architects: edvard blažko, marko volk, nejc batistič, aleš plesničar, igor spetič
area: 177 sqm