spaceworkers’ proposal for paredes municipal auditorium
image © pixelfactory
all images courtesy of spaceworks

 

 


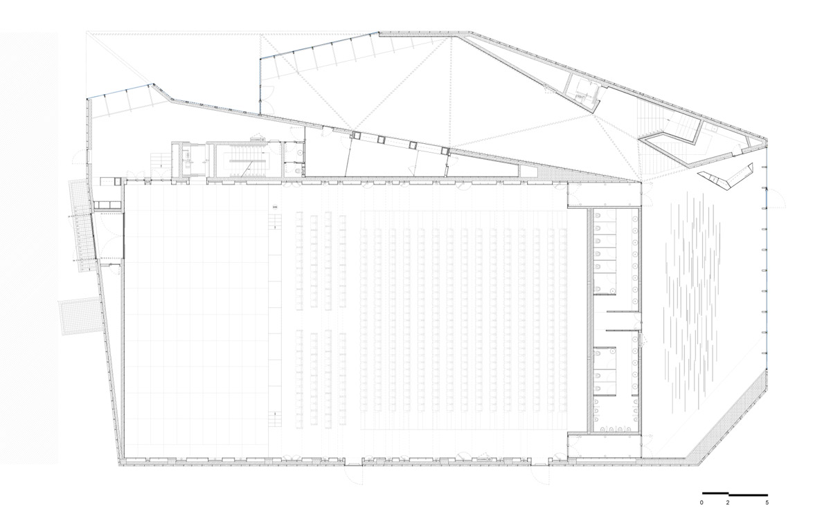
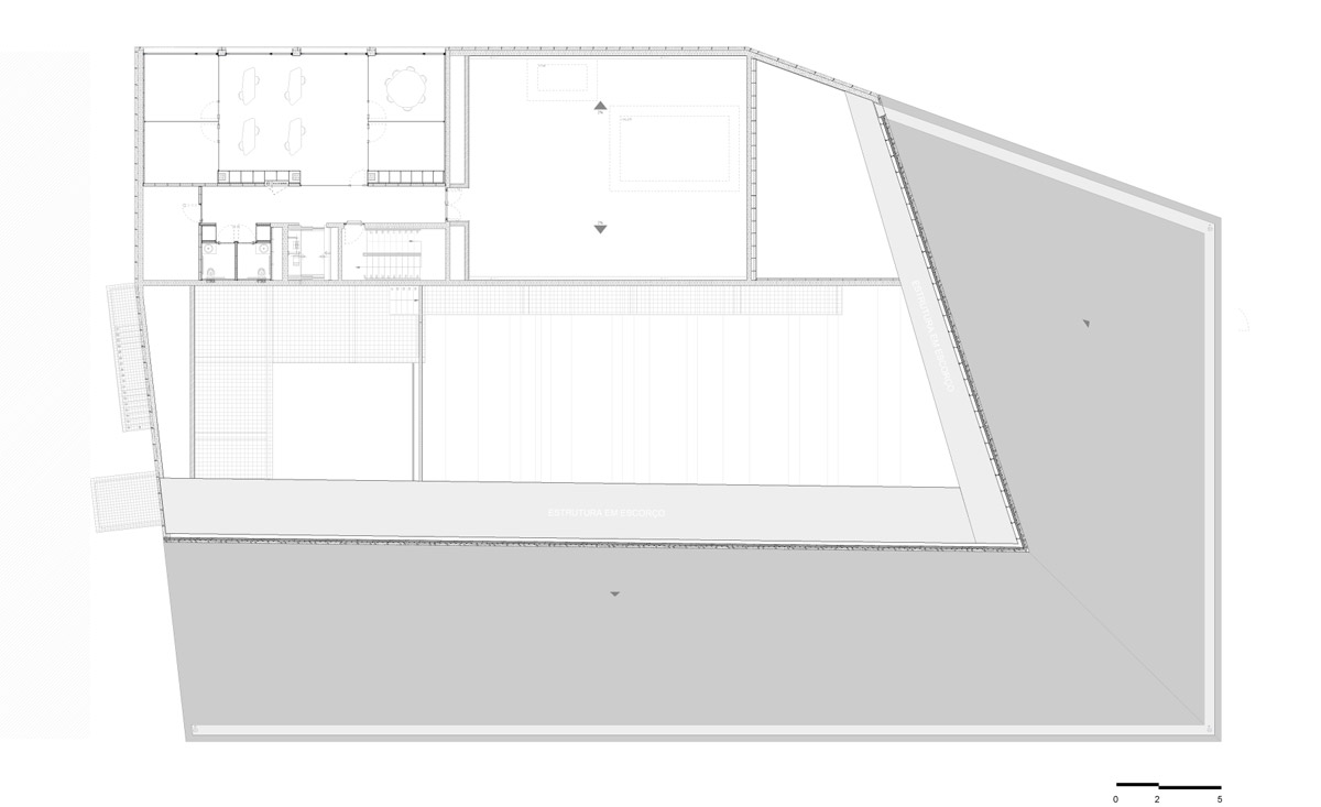
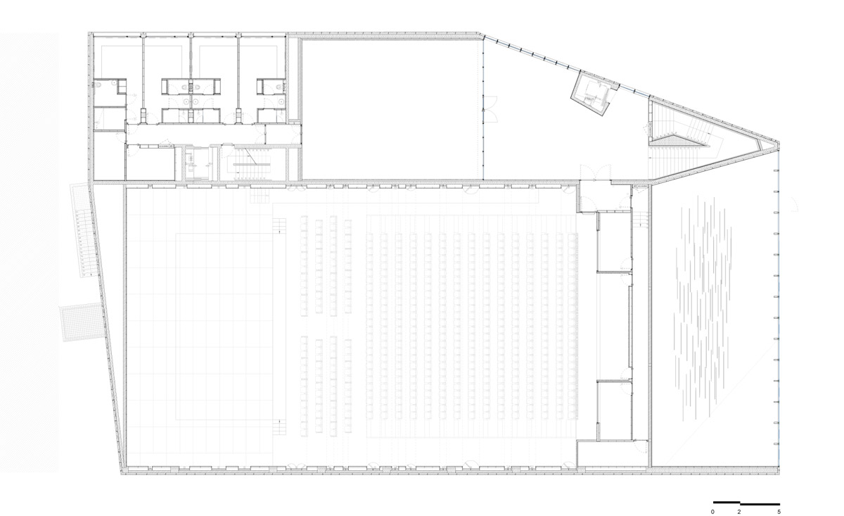
rising like a curtain, the design for the ‘paredes municipal auditorium’ by portuguese architecture firm spaceworkers’ shifts in scale from the entrance to the main lobby, letting spectators slip into the fantastical world of performance art.  the approach to the building invites patrons with a sliver of light, as if the expansive facade were a dark curtain drawn. a web-like geometry of light and red carpet finish the corridor, which runs along the exterior of the building, drawing admirers through the tunnel-like space into a grand lobby. here the exterior wall is glass, overlooking the park with grand scale to match the expansive space beyond. this interior open area directly connects to the 500 person theater, the main attraction of the cultural center. private spaces — dressing, make-up and green rooms — are attached to the rectilinear prism, giving the building its dramatic geometry. these spaces are separated from the public with auxiliary entrances located away from the main circulation route.

 

 

spaceworkers' paredes municipal auditorium proposal  - 2
rising like a curtain, the main entrance opens slightly to let spactators slip into the fantastical world of performance
image © pixelfactory

 

 

spaceworkers' paredes municipal auditorium proposal  - 3
entering the auditorium, a red-carpeteed hall draws patrons to the main lobby
image © pixelfactory

 

 

spaceworkers' paredes municipal auditorium proposal  - 4
a stair leads to the balconies while the hall continues to a large public space
image © pixelfactory

 

 

spaceworkers' paredes municipal auditorium proposal  - 5
(left): looking back toward the entrance
(right): the main lobby
images © pixelfactory
joaomorgado

 

 

spaceworkers' paredes municipal auditorium proposal  - 6
the main theatre holds 500 spectators
image © pixelfactory

 

1/21
spaceworkers\' paredes municipal auditorium on designboom
 
spaceworkers\' paredes municipal auditorium on designboom
 
spaceworkers\' paredes municipal auditorium on designboom
 
spaceworkers\' paredes municipal auditorium on designboom
 
spaceworkers\' paredes municipal auditorium on designboom
 
spaceworkers\' paredes municipal auditorium on designboom
 
spaceworkers\' paredes municipal auditorium on designboom
 
spaceworkers\' parades municipal auditorium on designboom
 
spaceworkers\' paredes municipal auditorium on designboom
 
spaceworkers\' paredes municipal auditorium on designboom
 
spaceworkers\' paredes municipal auditorium on designboom
 
spaceworkers\' paredes municipal auditorium on designboom
 
spaceworkers\' paredes municipal auditorium on designboom
 
spaceworkers\' paredes municipal auditorium on designboom
 
spaceworkers\' paredes municipal auditorium on designboom
 
spaceworkers\' paredes municipal auditorium on designboom
 
spaceworkers\' paredes municipal auditorium on designboom
 
spaceworkers\' paredes municipal auditorium on designboom
 
spaceworkers\' paredes municipal auditorium on designboom
 
spaceworkers\' paredes municipal auditorium on designboom
 
spaceworkers\' paredes municipal auditorium on designboom
 

 

project info:

 

project: public building
year: 2012 – waiting for the competition results to start the construction
size: 3500 m2
address: paredes
client: paredes city hall
author: spaceworkers ®
team:
principal architects: henrique marques | architect, rui dinis | architect
architects: rui rodrigues | architect, sérgio rocha | architect, rui miguel | architect
finance director: carla duarte – cfo
engineer: ASPP – engenheiros, lda