KEEP UP WITH OUR DAILY AND WEEKLY NEWSLETTERS
watch a new film capturing a portrait of the studio through photographs, drawings, and present day life inside barcelona's former cement factory.
designboom visits les caryatides in guyancourt to explore the iconic building in person and unveil its beauty and peculiarities.
the legendary architect and co-founder of archigram speaks with designboom at mugak/2025 on utopia, drawing, and the lasting impact of his visionary works.
connections: +330
a continuation of the existing rock formations, the hotel is articulated as a series of stepped horizontal planes, courtyards, and gardens.
curving forms converge upward, framing a bright open space above
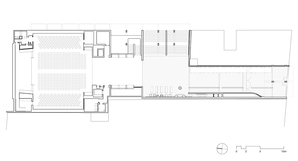
the floor curves to become a wall
the rising undulation above the worship hall monumentalizes the structure on an urban scale
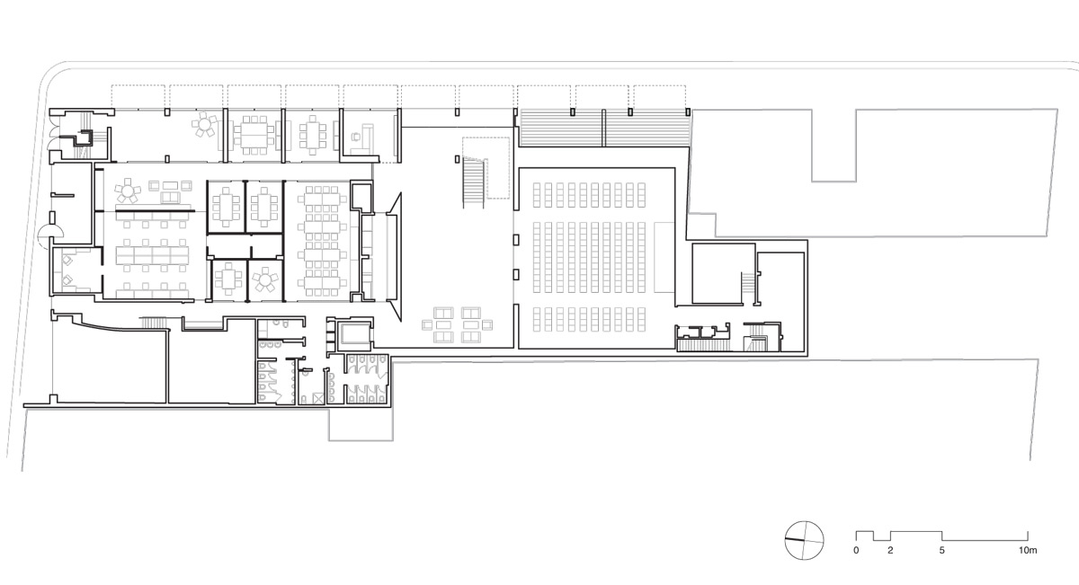
a wide staircase separates the main entry from the street level, while ground floor doors provide secondary access
the ground floor entry is visually transparent and spatially open
the double height ‘social heart’ serves as a gathering and transition zone in the building
the main entry façade is accented by a large cruciform window
at night, a glowing cross illuminates the site






