steven holl completes curving 'rubenstein commons' in princeton

steven holl completes curving 'rubenstein commons' in princeton

a new commons building at princeton’s IAS

 

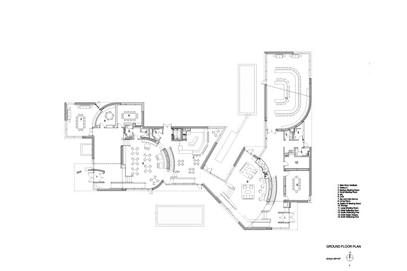
Steven Holl announces the completion of his team’s ‘Rubenstein Commons,’ which marks an expansion of the historic Institute for Advanced Study (IAS) in Princeton, New Jersey. First established in 1930, the IAS is commonly recognized as the institution where Albert Einstein worked from 1933 until his death in 1955. This newest structure continues the forward-thinking heritage of its nearly 100-year-old site, and takes shape with contemporary technologies to ensure a sustainable performance.

 

The team notes that the design is driven by ‘the concept of intertwining,’ with its overall structure interwoven with exterior circulation. The building is conceived as a social condenser with a variety of flexible meeting spaces supporting community and academic life on the IAS campus. The new building follows the existing topography primarily in a single level program with gradual slopes and offers views of the courtyards. See designboom’s previous coverage here!steven holl rubenstein commons
images © Paul Warchol | @paul_warchol

 

 

the ‘intertwining’ architecture by steven holl

 

Steven Holl Architects crafts the Rubenstein Commons as ‘an intertwining through the landscape’ of the IAS, connecting with pools of water on the north, south, and west. These water features reflect sunlight into the interiors to create a luminous, reflected atmosphere. The architects note: ‘Natural phenomena connect with science, physics, humanities, and art — corresponding to the Institute’s mission.

 

‘The geometry of the spaces is formed by ‘space curves’ where two non-planar curves intersect. As former IAS Director Robbert Dijkgraaf remarks, the curved ceilings give space for ‘thought bubbles’ of the scholars.’

steven holl rubenstein commons

 

 

the rubenstein commons in detail

 

The interior spaces are lined with blackboards crafted from natural slate, while prismatic glass breaks white light into the full spectrum of color. This way, the rooms are energized with natural light and color. Meanwhile, custom hand-blown light fixtures illuminate the curved ceilings while door handles are thoughtfully crafted with inspiration from knot theory.

 

Overall, the building is constructed with sustainability in mind. Twenty geothermal wells powered by the cycle of the earth’s seasonal temperature heat and cool the building with radiant floors. Natural ventilation in wood framed windows bring light and air into all spaces.

steven holl rubenstein commons

 

 

seasonally-minded landscapes

 

The landscape around the pools measures the time of a year’s passing through the four seasons. Spring is marked on the east side with pink blooming redbuds emerging in clusters along branches of the grove. Summer is marked to the south with rich green leaves of ginkgo trees, accented by Russian Sage purple flowers. Fall is marked to the west with vibrant red maples and the golden gingko leaves provide a striking contrast around the south reflecting pool. The north gardens are framed with a border of white pines and American hollies providing a green backdrop in the winter but also year-round.

steven holl rubenstein commons steven holl rubenstein commons

steven-holl-rubenstein-commons-institute-advanced-study-designboom-06a

 

1/12
 
 
 
 
 
 
 
 
 
 
 
 

project info:

 

project title: Rubenstein Commons

architecture: Steven Holl | @stevenhollarchitects

location: Princeton, New Jersey, USA

client: Institute for Advanced Study @instituteforadvancedstudy

building footprint: 9,620 square feet
building area: 17,175 square feet

completion: November 2022

previous coverage: April 2018

photography: © Paul Warchol | @paul_warchol

 

design team: Steven Holl, Noah Yaffe, Christina Yessios, Yun Shi, Michael Haddy, Xi Chen, Carolina Cohen Freue, Michael Haddy, Marcus Carter, Alessandra Catherine Calaguire, Elise Riley

structural engineering: Guy Nordenson and Associates

civil engineering: Van Note Harvey

MEP: ICOR

sustainability: Transsolar
lighting: L’Observatoire International
landscape: Ed Hollander Landscape Architects
curtainwall consulting: Knippers Helbig Advanced Engineering
cost consulting: Dharam Consulting

kitchen: JME Hospitality
geothermal: Wellspring Geothermal
water feature: AquaDesign

KEEP UP WITH OUR DAILY AND WEEKLY NEWSLETTERS
suscribe on designboom
- see sample
- see sample
suscribe on designboom

happening now! yusuke kawai explains how his design for pedrali’s kawara lighting collection fuses sacred japanese architecture with industrial precision.

architecture in the US (1634)

school architecture and design (751)

steven holl (76)

X
5