KEEP UP WITH OUR DAILY AND WEEKLY NEWSLETTERS
chilean architect smiljan radić clarke receives the 2026 pritzker architecture prize for his atmospheric, material-driven architecture.
connections: 40
opening in april 25th, 2026, inside palazzo pisani moretta, the exhibition brings together fashion, art, and collectible design.
connections: +1720
five finalist designs are unveiled for the 'shift landmark', an ambitious project for a growing waterfront district in rotterdam.
the milestone positions the cross as the highest point of the basilica and finalizes the grouping of its six central towers.

image © dbox
image © miguel muralha
sea villa type 1image © dbox
indoor and outdoor spaces flow seamlessly togetherimage © dbox / courtesy of
each room has a view to the bayimage ©
image © miguel muralha
image © miguel muralha
image © miguel muralha
image © miguel muralha
image © miguel muralha
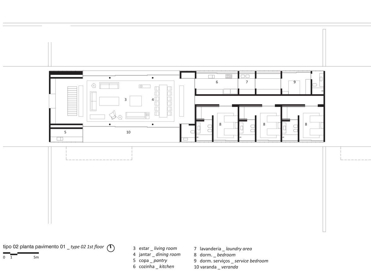
transverse section showing the two types of villas in relationship to the seaimage © studio MK27
‘caye sereno’ in perspective from the seaimage © studio MK27











