KEEP UP WITH OUR DAILY AND WEEKLY NEWSLETTERS
chilean architect smiljan radić clarke receives the 2026 pritzker architecture prize for his atmospheric, material-driven architecture.
connections: 40
opening in april 25th, 2026, inside palazzo pisani moretta, the exhibition brings together fashion, art, and collectible design.
connections: +1720
five finalist designs are unveiled for the 'shift landmark', an ambitious project for a growing waterfront district in rotterdam.
the milestone positions the cross as the highest point of the basilica and finalizes the grouping of its six central towers.

main living space and kitchen area
the concrete louver admit light and air into the house
kitchen area

sleeping area with built-in storage

interior of the house by night
view from the exterior looking into the interior
concrete louver by night
site plan
cross flow of air in the summer
cross flow of air in the winter
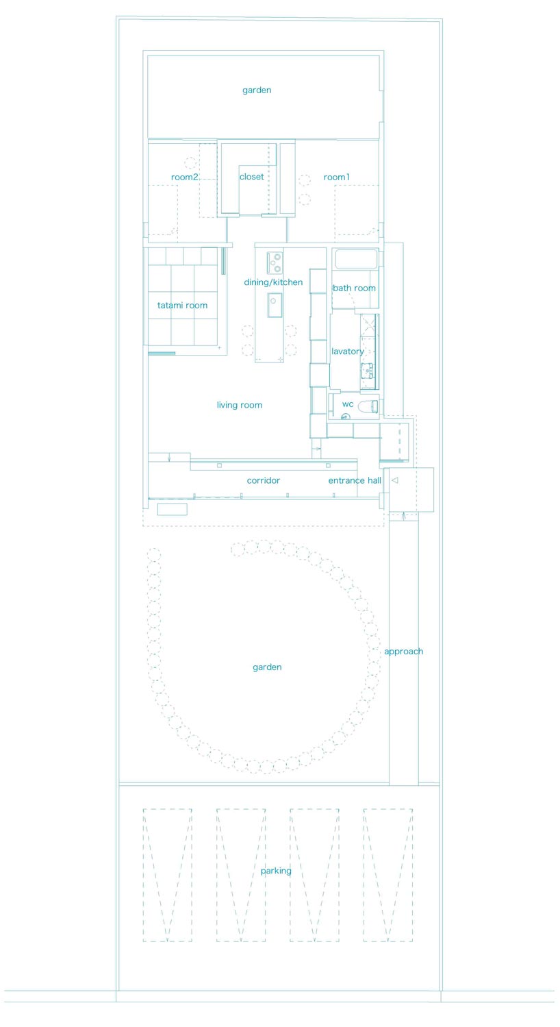
floor plan