‘through the deck into life’ by superform, ljubno ob savinji, slovenia
image © miran kambic
all images courtesy of superform

 

 

 

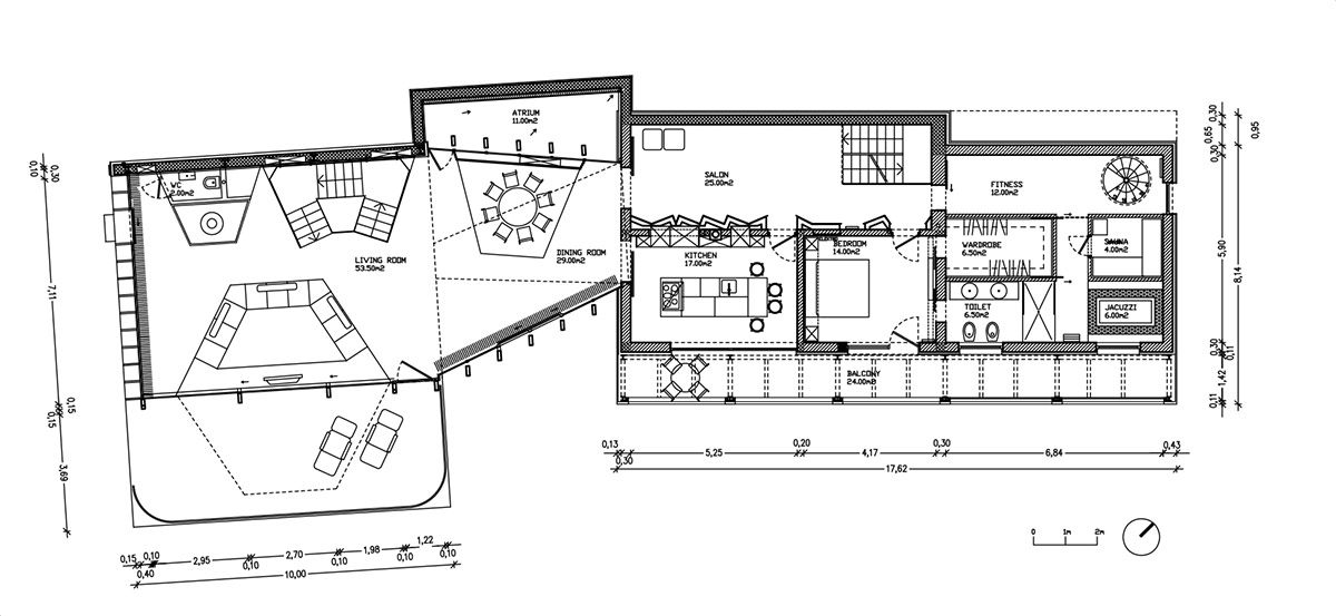
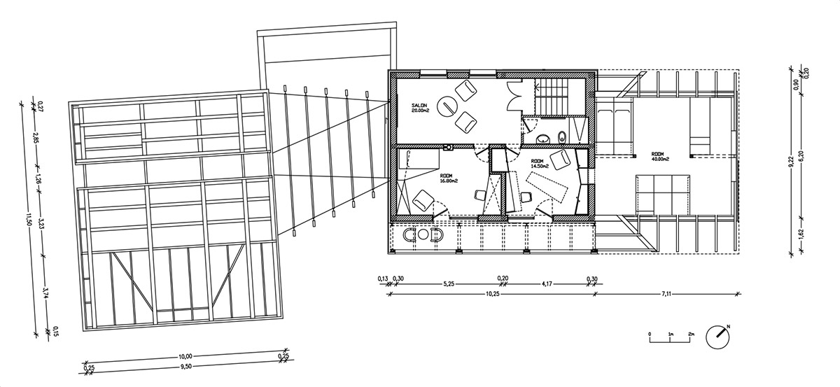
the house titled ‘through the deck into life’ by slovenian practice superform is a renovation of two adjacent existing homes near a brook in  ljubno ob savinji, slovenia. touching upon maritime themes, the structures are elevated  creating a vague ambiance of a boat on land. one home contains bedrooms and private program, built from more traditional materials and strategies and meant to represent the introverted side of the client. a full-length wooden louver screen wraps the entire structure under the traditional gabled roof. rounded rectangular window frames articulate two rows of operable windows that look out onto the greenery and front yard. a linear hallway along the front facade of the house creates a buffer space from direct sunlight behind which all the private bedrooms are located. the other house represents the open, social, light-filled portion of the project, housing the living  and dining areas. straying from the expected materials, the living room is clad in steel, glass, rheinzink metal cladding, wood and slate, forming an open space with several levels and a linear skylight that invites sunlight morning and evening. while the private area exhibits a typical residential vernacular in form, the second home strays into a playful compilation of angles and fragmented portions articulating dynamic geometries. similar to the private area, the living room contains a large deck supported over the wooden ground-level terraces and swimming pool, fish pond, and tall grasses.


 

superform takes you through the deck into life
overall view from the terrace
image © miran kambic

 

 

superform takes you through the deck into life
image © miran kambic

 

 

superform takes you through the deck into life
closed-off private home and open social home next to each other
image © miran kambic

 

 

superform takes you through the deck into life
operable windows and wooden screen
image © miran kambic

 

 

superform takes you through the deck into life
deck between the exterior and private bedrooms
image © miran kambic

 

 

superform takes you through the deck into life
image © miran kambic

 

 

superform takes you through the deck into life
inside the living and dining area
image © miran kambic

 

 

 

superform takes you through the deck into life

1/4
superform: through the deck into life
 
superform: through the deck into life
 
superform: through the deck into life
 
superform: through the deck into life
 

 

 

 

project info:

 

 

name of the project: through the deck into life
project: villa in ljubno ob savinji
author: superform d.o.o.: marjan poboljsaj udia., anton zizek, udia.
co-worker: meta zebre, udia.
invester: private
location: ljubno ob savinji, slovenia, europe
floor area: 420 m2      
landscape architecture: bruto d.o.o., matej kucina, udika.
photographer: miran kambic