tadao-ando-152-elizabeth-street-new-york-designboom-01
pritzer prize-winning architect tadao ando has fully released his vision for the design of his first manhattan condominium, ‘152 elizabeth‘. located in manhattan’s nolita neighborhood, the project is being developed by sumaida + khurana. the exterior comprises smooth, poured concrete and is wrapped in large, voluminous glass openings. sitting on a prominent corner plot, the concept was for the seven-story structure to emerge like a crystalline box out of its concrete base.

tadao-ando-152-elizabeth-street-new-york-designboom-02
all images by noë & associates and the boundary

 

 

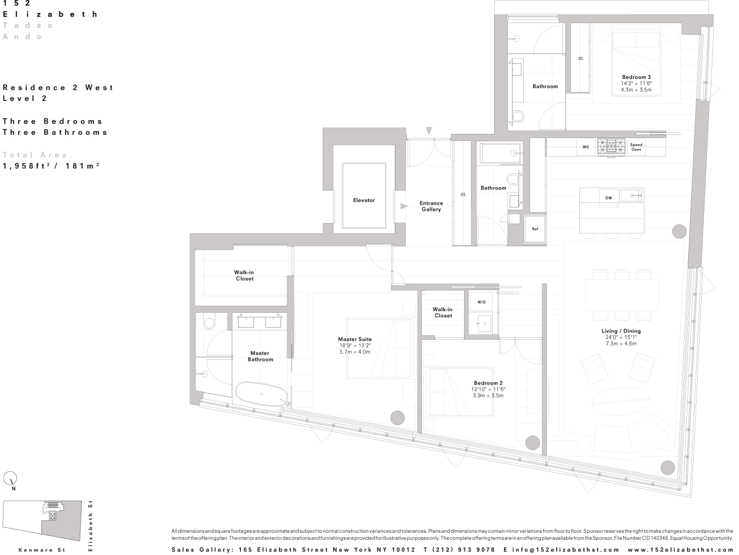
the high-end project continues its sophisticated and discreet aesthetics internally, where gabellini sheppard associates were charged with designing the interiors. every floor will be occupied with one apartment, each residence bespoke, and crafted to evoke warmth and elegance with meticulous detail applied to every aspect of the space. while cultivating an open-plan approach, the interiors simultaneously allow for privacy.

tadao-ando-152-elizabeth-street-new-york-designboom-02
the interiors deviates from using too many walls and doors

 

 

 

furthermore, inhabitants and visitors will get to experience the play of shadow created by a floor-to-ceiling water wall featuring grooved lass panels that diffused natural light. along with a prominent living green wall that will span the entire southern façade, 152 elizabeth seeks to be an example of ‘mindful architecture’ that blends refinement with masterly construction. wherever I am building, I think about how to create a space, in a particular time, that can both only exist and be understood in that particular location,’ says tadao ando.

 

see designboom’s previous coverage of 152 elizabeth here.

tadao-ando-152-elizabeth-street-new-york-designboom-02
kitchens are outfitted with custom cabinetry with appliances by gaggenau

tadao-ando-152-elizabeth-street-new-york-designboom-02
floor-to-ceiling windows frame the oversized japanese-style soaking tubs

tadao-ando-152-elizabeth-street-new-york-designboom-02
the building uses the primary elements of light, sound, air, and water

tadao-ando-152-elizabeth-street-new-york-designboom-02
ando harmoniously balances a number of fundamental elements

tadao-ando-152-elizabeth-street-new-york-designboom-02
the façade comprises poured-in-place concrete, burnished metal, and voluminous glass

tadao-ando-152-elizabeth-street-new-york-designboom-02
the project is the japanese architect’s first in new york

tadao-ando-152-elizabeth-street-new-york-designboom-02
eventually, a large living green wall will span the entire southern façade

 

1/3
g1
 
g2
 
g3
 

 

Save

Save