tai & architectural design celebrates pure space of taipei city apartment
photo © kyle yu
all images courtesy of tai & architectural design

 

 

 

constraints during the design process can come in various forms. they can be socially, culturally, economically, and politically driven, adding a whole new aspect to the development of projects. tai & architectural design has envisioned the space for a couple, who work in central taipei city. in regards to the property, it may be only rented for five years from the government, at the end of which, they must return it in the same condition.

tai architectural design apartment interior taipei city
the storage units have been built to be movable
photo © kyle yu

 

 

 

following these guidelines, the architect has maintained the flexibility of the interior while providing a movable storage system that can still be reused when the contract has expired. the white color that coats virtually every surface of the interior is meant to blur the profiles of the space and celebrate its purity. between the lounge and the terrace, a wall of glazing highlights the materials inside and correspondingly frames views of the metropolis outside. due to the limitations of the budget, the ceiling pipes and their construction are exposed using the bright color palette. in turn, money was saved to buy furniture pieces that compliment the rest of the aesthetic elements.

tai architectural design apartment interior taipei city
the dining table
photo © kyle yu

 

 

 

the main function of the public space is the dining area, which links to the bedrooms by via ‘light path’ where residents can spend the whole day feeling the change of daylight. functionally, the corridor also separates the programs in order to provide them with their own individual identities without disrupting the activities of one another.

tai architectural design apartment interior taipei city
living area
photo © kyle yu

tai architectural design apartment interior taipei city
the corridor
photo © kyle yu

tai architectural design apartment interior taipei city
study
photo © kyle yu

tai architectural design apartment interior taipei city
master bedroom
photo © kyle yu

tai architectural design apartment interior taipei city
master bedroom
photo © kyle yu

tai architectural design apartment interior taipei city
dining area
photo © kyle yu 

tai & architectural design celebrates pure space of taipei city apartment
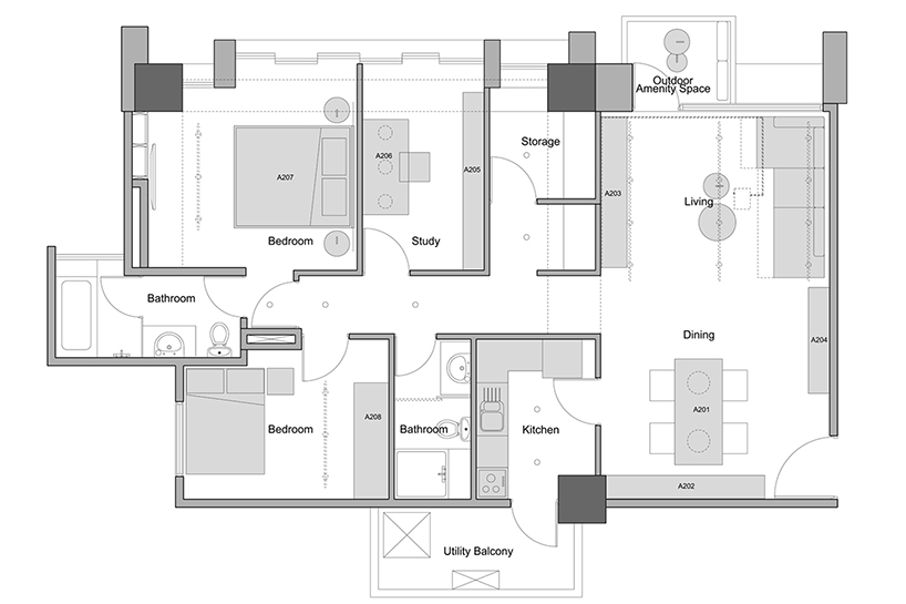
floor plan

 

 

designboom has received this project from our ‘DIY submissions‘ feature, where we welcome our readers to submit their own work for publication. see more project submissions from our readers here.