
interiors gaze out toward the rural village and mountains beyond

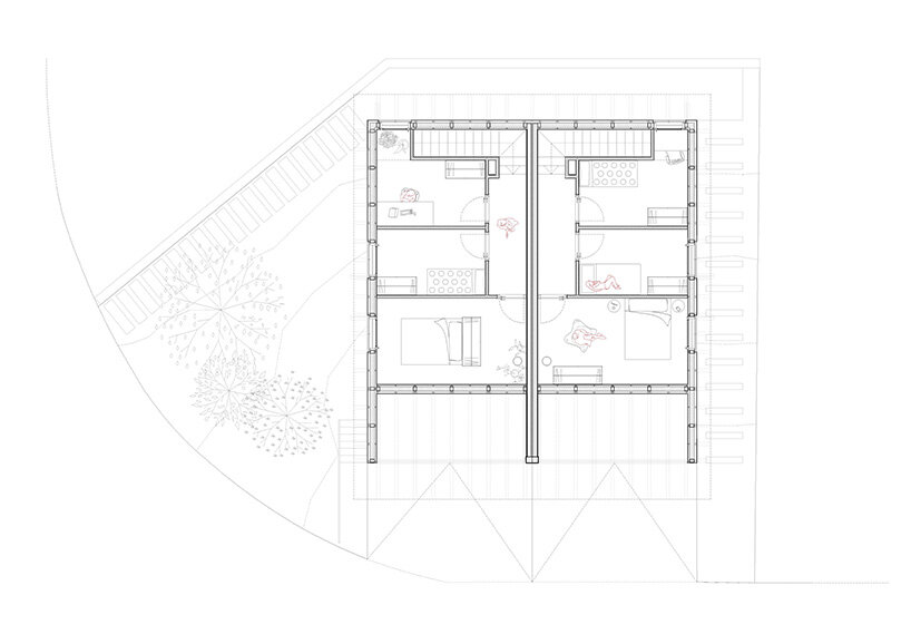
interiors are organized with an ultra-efficient, modular logic
KEEP UP WITH OUR DAILY AND WEEKLY NEWSLETTERS
the spiral structure is built from upcycled lantana camara, an invasive shrub introduced to india through colonial trade routes.
connections: +990
designboom discusses this creative boom with stefano boeri, MVRDV's winy maas, christian kerez, beat huesler of oppenheim architecture, and the team at bofill taller de arquitectura.
the proposal draws from a historic english architectural feature composed of alternating curves.
the zando central market redevelopment turns one of the congolese capital’s most vital spaces into an infrastructure for 20,000 vendors.
connections: +1830
images © 

wood-cement composite panels form the facade
hybridizing the old and the new, the architecture harmonizes with its site
the spaces express a pared-back design with exposed plywood











