19 Social Housing Project Features Innovative L-Shaped Design

 

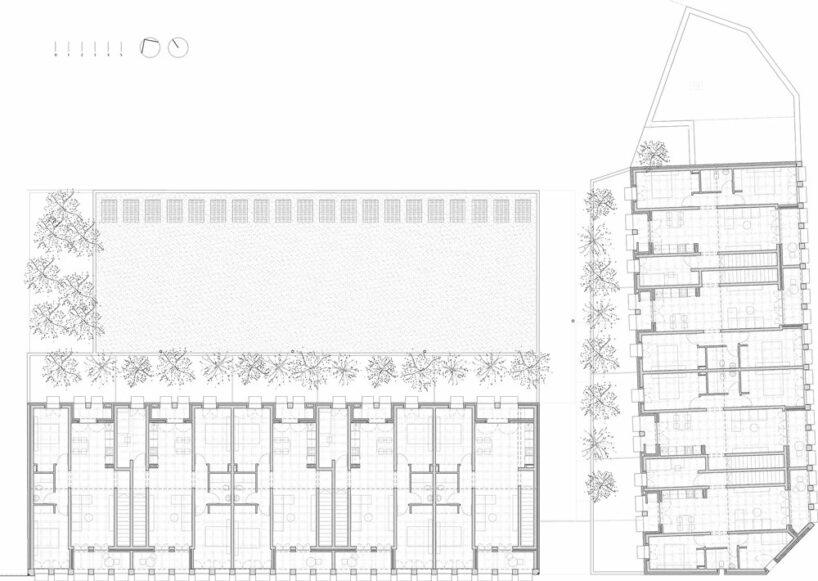
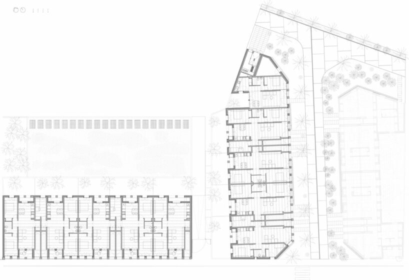
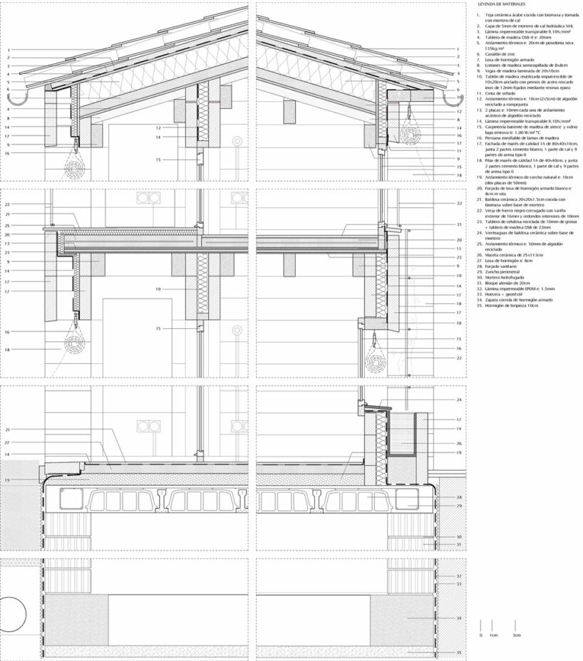
The 19 social housing project, Salvador Espriu, located in Palma, is comprised of two interconnected volumes forming an L-shape, with orientations spanning east-west and north-south. The housing typologies consist of two- and three-bedroom units, designed with double orientations and featuring a structure composed of 20 cm-thick load-bearing marés sandstone walls. These walls provide thermal mass for passive summer cooling and support natural cross ventilation.

 

In contrast to the phase one building (39 Salvador Espriu) with an 8-meter buildable depth, this second phase presents a 13.5-meter depth, necessitating a design approach that frees the facade from structural load-bearing duties to optimize illumination for the units. Floors are constructed using wooden beams resting on parallel walls between the dwellings, composed of 20x20x80 cm local sandstone blocks. These marés pieces are halved to adhere to weight regulations for worker handling.

thick marés sandstone walls compose 19 social housing, salvador espriu in palma
all images by ©Milena Villalba

 

 

Salvador Espriu Housing utilizes local sandstone in several tones

 

The structural approach draws from the Menorcan system, influenced by the Catalan technique introduced in the 13th century, as opposed to the traditional Majorcan method, which loads slabs on facade walls. Windows are shielded by a colonnade of 40×40 cm stone pillars, creating a loggia that accommodates roller blinds, fences, and vines for sun protection and porch privacy.

 

The holistic design of the buildings and public spaces promotes residents’ engagement in outdoor communal spaces during summer nights, reminiscent of the Mediterranean lifestyle. This approach aligns with the recovery of the dense, compact, low-rise Mediterranean city model, incorporating public spaces that mitigate the ‘heat island’ effect. The project is captured by architectural photographer Milena Villalba.

thick marés sandstone walls compose 19 social housing, salvador espriu in palma
Salvador Espriu social housing features interconnected volumes forming an L-shape design

thick marés sandstone walls compose 19 social housing, salvador espriu in palma
marés sandstone pieces are cut in half to meet weight regulations for easy handling during construction

thick marés sandstone walls compose 19 social housing, salvador espriu in palma
the design implements the Menorcan system, influenced by 13th-century Catalan techniques

thick marés sandstone walls compose 19 social housing, salvador espriu in palma
the structure is constructed with 20 cm-thick marés sandstone walls for thermal mass and passive cooling

thick marés sandstone walls compose 19 social housing, salvador espriu in palma
stone pillars provide sun protection and privacy for porches and terraces

thick marés sandstone walls compose 19 social housing, salvador espriu in palma
the housing complex includes two- and three-bedroom units with double orientations for optimal airflow

thick marés sandstone walls compose 19 social housing, salvador espriu in palma
the project fosters natural cross-ventilation for energy-efficient living spaces

thick marés sandstone walls compose 19 social housing, salvador espriu in palma
the design supports Mediterranean lifestyle habits, encouraging outdoor communal engagement

thick marés sandstone walls compose 19 social housing, salvador espriu in palma

thick marés sandstone walls compose 19 social housing, salvador espriu in palma

thick marés sandstone walls compose 19 social housing, salvador espriu in palma

thick marés sandstone walls compose 19 social housing, salvador espriu in palma

thick marés sandstone walls compose 19 social housing, salvador espriu in palma thick marés sandstone walls compose 19 social housing, salvador espriu in palma thick marés sandstone walls compose 19 social housing, salvador espriu in palma

 

1/7
 
 
 
 
 
 
 

project info:

 

name: 19 social housing, Salvador Espriu

design team: Carles Oliver Barceló, Antonio Martín Procopio, Xim Moyà Costa, Alfonso Reina Ferragut

works management: Carles Oliver Barceló, Miguel Nevado (structure)

surveyor: Joan Palau i Associats SLP

structure: DICAES, Miguel Nevado

engineer: Tomeu Alzina

architects: Ernest Bordoy, J. Oriol García, Miquel Ramon, Jaime Feliu, Aina Pons, Mar Amengual

surface: 2.196 sqm

location: Palma, Spain

photography: Milena Villalba | @milena_archphoto

 

 

designboom has received this project from our DIY submissions feature, where we welcome our readers to submit their own work for publication. see more project submissions from our readers here.

 

edited by: christina vergopoulou | designboom